Share
$969,000
Ontario,Tweed (Hungerford (Twp))
For Sale Active
1503 MONEYMORE ROAD, Tweed (Hungerford (Twp)), Ontario K0K2Y0
  • 4
  • 2
  • 2000 - 2500Square Feet
Contact Seller
Basic Details
Description

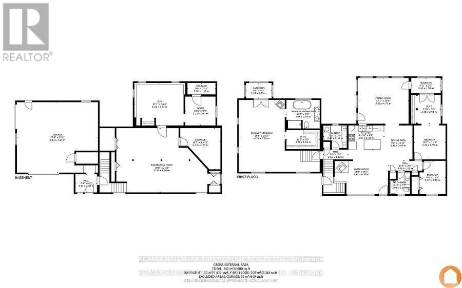
Wide open spaces await at your own private 100-ACRE OASIS! This beautiful treed property offers hiking trails, nature walks, and hunting right in your backyard. The spacious family home sits just off a paved road, only 20 minutes to Belleville/401 or 30 minutes to Napanee. This lovely raised bungalow boasts over 2,200 sq. ft. on the main floor, with many

upgrades and a move-in ready feel. Step into the open-concept living, dining, and kitchen area, featuring a bright south-facing living room with a walkout to the front deck and a cozy woodstove. The kitchen is perfect for entertaining, with a large center island, while the family room’s many windows overlook the backyard. Enjoy mornings in the screened in porch or relax on the large tiered back deck with both shaded and sunny spots. The main level includes laundry, a 4-piece bath, and two large bedrooms-one with access to the screened porch and a spacious closet. A few steps up and you enter into the impressive owner’s suite, which features cathedral wood ceilings, a propane fireplace, private sunroom, 5-piece ensuite with soaker tub and walk-in shower, plus a walk-in closet. The finished lower level offers a roomy rec area, a fourth bedroom (currently a gym), an office or storage room, and plenty of space for games or play. Main heating is propane forced air with two woodstove -one in the house and one in the garage. Additional highlights include a drilled well, metal roofs on the house and storage garage, and a rustic 16×30 ft. off-grid cabin in the woods for hunting or quiet escapes. The large attached garage is insulated, heated with a woodstove, and has two overhead doors, perfect for a workshop or tinkering. This immaculate country home is a dream come true-value-packed and ready for you! (id:62650)

Read More
Basic Details
  • Property Type: Residential
  • Listing Type: For Sale
  • Listing ID: X13015766
  • Price: $969,000
  • Bedrooms: 4
  • Bathrooms: 2
  • Square Footage: 2000 - 2500 Sqft
  • Status: Active
  • Property Sub Type: Single Family
  • Office Key: 157982
Features & Appliances
Features
  • Heating System: Propane, Forced air
  • Cooling System: Central air conditioning
  • Basement: Finished, Full
  • Fireplace: Woodstove
  • Parking: Garage, Attached Garage
  • Architectural Style: Raised bungalow
  • Exterior Features: Vinyl siding
  • Flooring: Carpeted
  • Sewer: Septic System
  • Utilities: Electricity
  • Fireplaces Total: 3
Address Map
  • Location: CA, Ontario, Tweed (Hungerford (Twp)), K0K2Y0
  • Street: Moneymore
  • Street Number: 1503
  • Street Suffix: Road
  • Longitude: W78° 45' 27.9''
  • Latitude: N44° 23' 8.7''
Additional Information
  • Water Source:
  • Foundation Details:
  • Lot Features:
  • Lot Size Dimensions: 981 x 4213 FT ; 1014 x 4510 Feet
  • Stories: 1.0
Financial
  • Tax Annual Amount: 4306.03
Powered by REALTOR.ca
Listing updated: 2026-04-23 21:35:08
List Your Property
Mortgage Calculator
Get Pre-Approved
$
$
%
%
years
Monthly Payment (Est.) $
Similar Properties
Listing Information
  • List Agent Key: 1425628
  • List Office Key: 157982
  • Modification Timestamp: 2026-04-18T14:30:25Z
  • Originating System Name: Central Lakes Association of REALTORS®
  • Status Change Timestamp: 2026-04-18T14:20:35Z
Powered by REALTOR.ca
Listing updated: 2026-04-23 21:35:08
REALTOR®, REALTORS®, and the REALTOR® logo are certification marks that are owned by REALTOR® Canada Inc. and licensed exclusively to The Canadian Real Estate Association (CREA). These certification marks identify real estate professionals who are members of CREA and who must abide by CREA’s By‐Laws, Rules, and the REALTOR® Code. The MLS® trademark and the MLS® logo are owned by CREA and identify the quality of services provided by real estate professionals who are members of CREA.

The information contained on this site is based in whole or in part on information that is provided by members of The Canadian Real Estate Association, who are responsible for its accuracy. CREA reproduces and distributes this information as a service for its members and assumes no responsibility for its accuracy.

Website is operated by a brokerage or salesperson who is a member of The Canadian Real Estate Association.

The listing content on this website is protected by copyright and other laws, and is intended solely for the private, non‐commercial use by individuals. Any other reproduction, distribution or use of the content, in whole or in part, is specifically forbidden. The prohibited uses include commercial use, “screen scraping”, “database scraping”, and any other activity intended to collect, store, reorganize or manipulate data on the pages produced by or displayed on this website.

By continuing to use this website and its services, you agree to these

These forms are provided to ComFree’s Unrepresented Sellers as a part of their Mere Posting ComFree Listing Contract.

I acknowledge I can only access these forms as a ComFree customer under contract.

These forms are provided to ComFree’s Unrepresented Sellers as a part of their Mere Posting ComFree Listing Contract and in partnership with Zubic Law.

I acknowledge I can only access these forms as a ComFree customer under contract.

These forms are provided to ComFree’s Unrepresented Sellers as a part of their Mere Posting ComFree Listing Contract and in partnership with Zubic Law.

I acknowledge I can only access these forms as a ComFree customer under contract.

How It Works

1. Purchase Your Package

2. We Ship Your ‘For Sale’ Sign

3. Book Your VR Tour

4. Complete Listing Input Forms

5. We Make Your Listing Live

6. Get Support 7 Days a Week

7. iSOLD!