Share
$699,900
Ontario,Ottawa
For Sale Active
203 CARRUTHERS AVENUE, Ottawa, Ontario K1Y1N6
  • 2
  • 2
  • 1100 - 1500Square Feet
Basic Details
Description

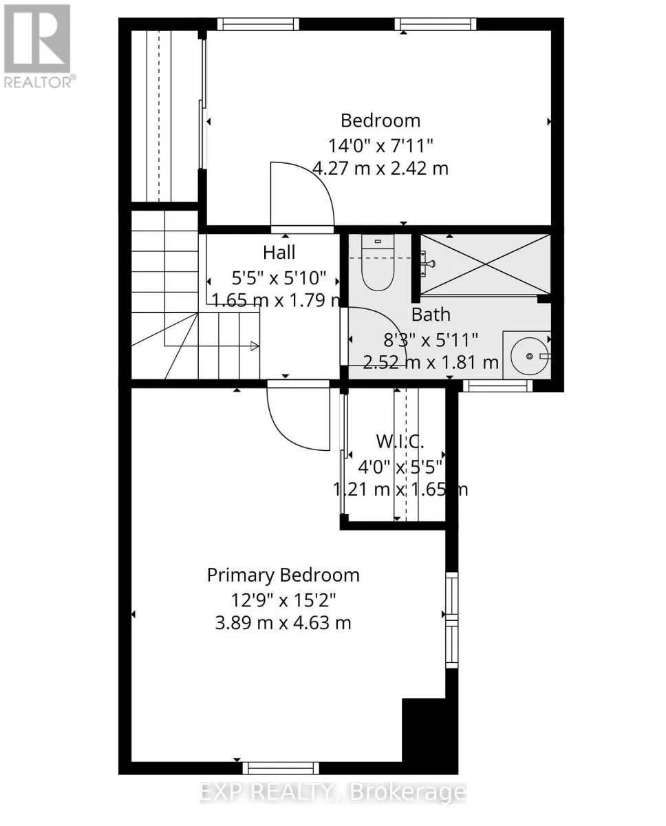
Fantastic opportunity to own an affordable move-in ready single-family home in the heart of Hintonburg! This charming 2 bed, 1.5 bath home sits on a 33′ x 90′ lot and features a rare oversized detached garage. The main level showcases gorgeous hardwood floors throughout, a spacious living and dining area, and an updated kitchen complete with quartz countertops, centre island,

stainless steel appliances and gas stove. A bright three-season front porch and convenient 2pc bath with laundry complete the main floor. Upstairs offers two generously sized bedrooms with ample closet space and a beautifully renovated 3pc bath with custom tile shower. Step outside to a private rear yard with patio, mature gardens, and the solid oversized garage (15ft x 20ft). Unbeatable location just steps to all the shops & restaurants along Wellington St, the Parkdale Market, the Ottawa River Parkway, LRT, and a small city park just two doors down- urban living at its best! Amazing development options in this prime rental location- a great property to rent out while you plan your project! This home is perfect for the first time buyer, downsizer or investor- don’t miss out! No Conveyance of Offers prior to 12pm Friday April 24th, 2026 (id:62650)

Read More
Basic Details
  • Property Type: Residential
  • Listing Type: For Sale
  • Listing ID: X13030198
  • Price: $699,900
  • Bedrooms: 2
  • Bathrooms: 2
  • Half Bathrooms: 1
  • Square Footage: 1100 - 1500 Sqft
  • Status: Active
  • Property Sub Type: Single Family
  • Office Key: 280312
Features & Appliances
Features
  • Heating System: Electric, Other, Natural gas, Baseboard heaters, Not known
  • Cooling System: Wall unit
  • Basement: Crawl space
  • Parking: Detached Garage, Garage
  • Exterior Features: Vinyl siding
  • Sewer: Sanitary sewer
Address Map
  • Location: CA, Ontario, Ottawa, K1Y1N6
  • Street: Carruthers
  • Street Number: 203
  • Street Suffix: Avenue
  • Longitude: W76° 16' 18.7''
  • Latitude: N45° 24' 17.8''
Additional Information
  • Water Source:
  • Foundation Details:
  • Lot Size Dimensions: 33 x 90.8 FT
  • Stories: 2.0
Financial
  • Tax Annual Amount: 5127
Powered by REALTOR.ca
Listing updated: 2026-04-23 02:06:13
List Your Property
Mortgage Calculator
Get Pre-Approved
$
$
%
%
years
Monthly Payment (Est.) $
Listing Information
  • List Agent Key: 1893553
  • List Office Key: 280312
  • Modification Timestamp: 2026-04-23T02:50:50Z
  • Originating System Name: Ottawa Real Estate Board
  • Status Change Timestamp: 2026-04-23T02:24:31Z
Powered by REALTOR.ca
Listing updated: 2026-04-23 02:06:14
REALTOR®, REALTORS®, and the REALTOR® logo are certification marks that are owned by REALTOR® Canada Inc. and licensed exclusively to The Canadian Real Estate Association (CREA). These certification marks identify real estate professionals who are members of CREA and who must abide by CREA’s By‐Laws, Rules, and the REALTOR® Code. The MLS® trademark and the MLS® logo are owned by CREA and identify the quality of services provided by real estate professionals who are members of CREA.

The information contained on this site is based in whole or in part on information that is provided by members of The Canadian Real Estate Association, who are responsible for its accuracy. CREA reproduces and distributes this information as a service for its members and assumes no responsibility for its accuracy.

Website is operated by a brokerage or salesperson who is a member of The Canadian Real Estate Association.

The listing content on this website is protected by copyright and other laws, and is intended solely for the private, non‐commercial use by individuals. Any other reproduction, distribution or use of the content, in whole or in part, is specifically forbidden. The prohibited uses include commercial use, “screen scraping”, “database scraping”, and any other activity intended to collect, store, reorganize or manipulate data on the pages produced by or displayed on this website.

By continuing to use this website and its services, you agree to these

These forms are provided to ComFree’s Unrepresented Sellers as a part of their Mere Posting ComFree Listing Contract.

I acknowledge I can only access these forms as a ComFree customer under contract.

These forms are provided to ComFree’s Unrepresented Sellers as a part of their Mere Posting ComFree Listing Contract and in partnership with Zubic Law.

I acknowledge I can only access these forms as a ComFree customer under contract.

These forms are provided to ComFree’s Unrepresented Sellers as a part of their Mere Posting ComFree Listing Contract and in partnership with Zubic Law.

I acknowledge I can only access these forms as a ComFree customer under contract.

How It Works

1. Purchase Your Package

2. We Ship Your ‘For Sale’ Sign

3. Book Your VR Tour

4. Complete Listing Input Forms

5. We Make Your Listing Live

6. Get Support 7 Days a Week

7. iSOLD!