Share
$819,900
Ontario,Hamilton (Gurnett)
For Sale Active
263 GUILDWOOD DRIVE, Hamilton (Gurnett), Ontario L9C6W7
  • 4
  • 2
  • 1500 - 2000Square Feet
Contact Seller
Basic Details
Description

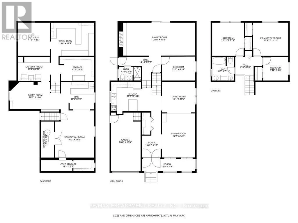
Welcome to this beautifully maintained 4 level backsplit in the highly sought after Gurnett neighbourhood on Hamilton’s West Mountain-just minutes to Ancaster, top rated schools, parks, and convenient highway access. With a separate side entrance and basement walkout , this home offers excellent in-law suite potential. With over 2400 square feet of finished living space, this home features hardwood flooring

throughout and a versatile layout ideal for families or multi-generational living. The main level offers a bright living room, separate dining area, and an updated kitchen complete with solid oak cabinetry, stainless steel appliances, and a breakfast bar. The second level features three bedrooms and an updated 4 pc bathroom with double sinks and heated floors. The lower level is fully above grade with an oversized family room with wood burning fireplace and sliding glass doors leading to the backyard, along with a fourth bedroom (ideal as a home office/flex space),3 pc bathroom and separate side entrance. The basement level is full of retro charm with a spacious rec room with classic bar featuring brass railings, sink, and paneled accents. Additional features include a cold cellar, laundry area, workshop with built-in bench, and plenty of storage. Recent updates include furnace and owned hot water heater (2025), updated electrical, and central vacuum. Fully fenced, private backyard complete with landscaping, a shed, and awning extension. Fantastic opportunity in one of Hamilton Mountain’s most desirable communities. (id:62650)

Read More
Basic Details
  • Property Type: Residential
  • Listing Type: For Sale
  • Listing ID: X13032158
  • Price: $819,900
  • Bedrooms: 4
  • Bathrooms: 2
  • Square Footage: 1500 - 2000 Sqft
  • Status: Active
  • Property Sub Type: Single Family
  • Office Key: 284773
Features & Appliances
Features
  • Heating System: Forced air, Natural gas
  • Cooling System: Central air conditioning
  • Basement: Separate entrance, Partially finished, N/A, Partial
  • Fence: Fenced yard
  • Parking: Garage, Attached Garage
  • Exterior Features: Brick
  • Sewer: Sanitary sewer
Address Map
  • Location: CA, Ontario, Hamilton (Gurnett), L9C6W7
  • Street: Guildwood
  • Street Number: 263
  • Street Suffix: Drive
  • Longitude: W80° 4' 31''
  • Latitude: N43° 13' 34''
Additional Information
  • Water Source:
  • Foundation Details:
  • Lot Size Dimensions: 40 x 100 FT
Financial
  • Tax Annual Amount: 6213.11
Powered by REALTOR.ca
Listing updated: 2026-04-23 03:37:56
List Your Property
Mortgage Calculator
Get Pre-Approved
$
$
%
%
years
Monthly Payment (Est.) $
Listing Information
  • List Agent Key: 2087146
  • List Office Key: 284773
  • Modification Timestamp: 2026-04-22T20:35:47Z
  • Originating System Name: Toronto Regional Real Estate Board
  • Status Change Timestamp: 2026-04-22T20:14:27Z
Powered by REALTOR.ca
Listing updated: 2026-04-23 03:37:57
REALTOR®, REALTORS®, and the REALTOR® logo are certification marks that are owned by REALTOR® Canada Inc. and licensed exclusively to The Canadian Real Estate Association (CREA). These certification marks identify real estate professionals who are members of CREA and who must abide by CREA’s By‐Laws, Rules, and the REALTOR® Code. The MLS® trademark and the MLS® logo are owned by CREA and identify the quality of services provided by real estate professionals who are members of CREA.

The information contained on this site is based in whole or in part on information that is provided by members of The Canadian Real Estate Association, who are responsible for its accuracy. CREA reproduces and distributes this information as a service for its members and assumes no responsibility for its accuracy.

Website is operated by a brokerage or salesperson who is a member of The Canadian Real Estate Association.

The listing content on this website is protected by copyright and other laws, and is intended solely for the private, non‐commercial use by individuals. Any other reproduction, distribution or use of the content, in whole or in part, is specifically forbidden. The prohibited uses include commercial use, “screen scraping”, “database scraping”, and any other activity intended to collect, store, reorganize or manipulate data on the pages produced by or displayed on this website.

By continuing to use this website and its services, you agree to these

These forms are provided to ComFree’s Unrepresented Sellers as a part of their Mere Posting ComFree Listing Contract.

I acknowledge I can only access these forms as a ComFree customer under contract.

These forms are provided to ComFree’s Unrepresented Sellers as a part of their Mere Posting ComFree Listing Contract and in partnership with Zubic Law.

I acknowledge I can only access these forms as a ComFree customer under contract.

These forms are provided to ComFree’s Unrepresented Sellers as a part of their Mere Posting ComFree Listing Contract and in partnership with Zubic Law.

I acknowledge I can only access these forms as a ComFree customer under contract.

How It Works

1. Purchase Your Package

2. We Ship Your ‘For Sale’ Sign

3. Book Your VR Tour

4. Complete Listing Input Forms

5. We Make Your Listing Live

6. Get Support 7 Days a Week

7. iSOLD!