Share
$489,900
Ontario,Sudbury
For Sale Active
1305 Rose Marie Avenue, Sudbury, Ontario P3A4E4
  • 3
  • 2
Next Open House
  • Apr 26 14:00 - 16:00
Basic Details
Description

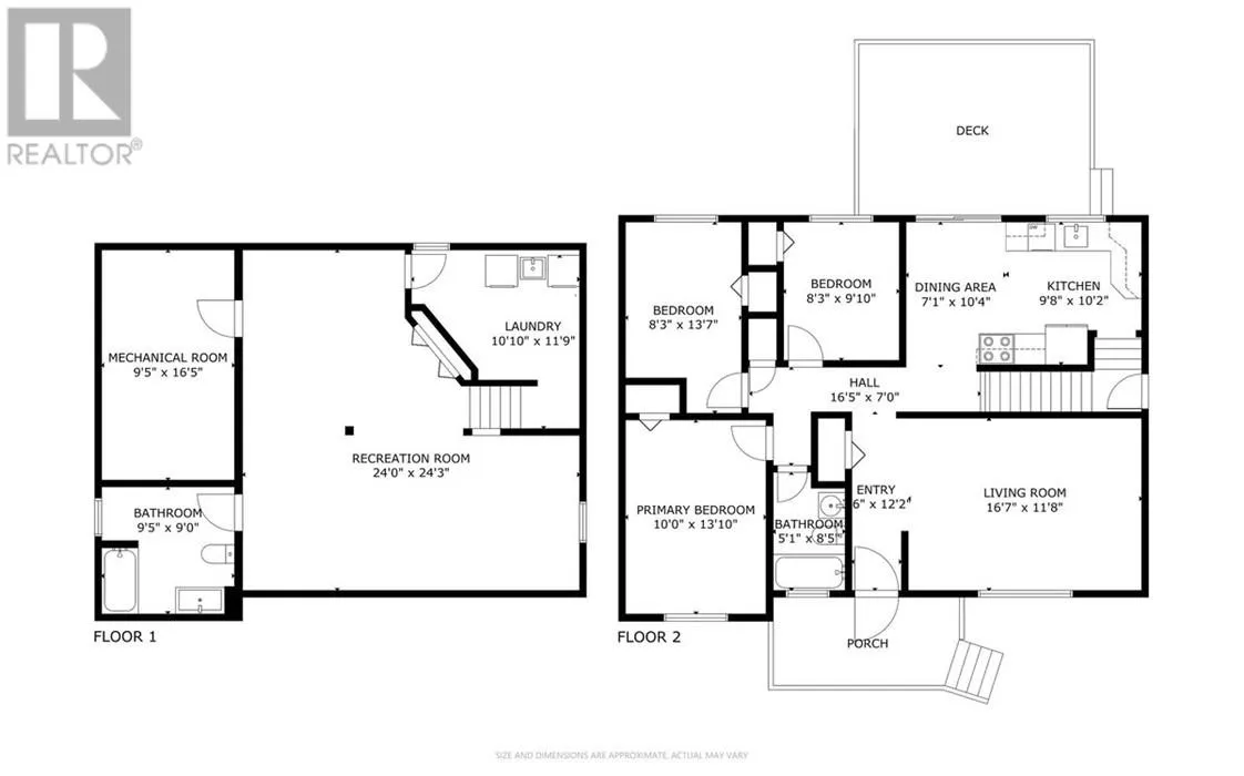
Welcome to 1305 Rose Marie Avenue, a beautifully maintained 3-bedroom bungalow located in the heart of prime New Sudbury, offering an ideal blend of comfort, thoughtful updates, and unbeatable location. Step inside to a bright eat-in kitchen filled with natural light, featuring a patio door walkout to a huge deck—perfect for entertaining, summer BBQs, or simply enjoying quiet evenings outdoors.

The inviting living room showcases gleaming hardwood floors and elegant French doors, adding warmth and character to the space. The main floor offers three well-sized bedrooms, making this home ideal for families, downsizers, or anyone seeking convenient one-level living. Downstairs, the fully finished lower level expands your living space with a spacious rec room complete with a cozy gas fireplace, new flooring, a dedicated laundry area, and plenty of storage. Major updates provide peace of mind, including weeping tiles redone in 2016, shingles replaced in 2021, and a new furnace, central air conditioner, and hot water tank all completed in 2021, along with a fully renovated bathroom. Outside, you’ll find a double lockstone driveway, a child-safe fenced backyard, and two sheds, including a massive storage shed for all your needs. The west-facing backyard offers beautiful afternoon and evening sun, creating the perfect outdoor retreat. Situated in a quiet, family-friendly neighbourhood close to parks, schools, and all amenities, this home is a fantastic opportunity to get into one of Sudbury’s most desirable areas. (id:62650)

Read More
Basic Details
  • Property Type: Residential
  • Listing Type: For Sale
  • Listing ID: 2127245
  • Price: $489,900
  • Bedrooms: 3
  • Bathrooms: 2
  • Status: Active
  • Property Sub Type: Single Family
  • Roof:
  • Office Key: 79955
Features & Appliances
Features
  • Heating System: Forced air
  • Cooling System: Central air conditioning
  • Basement: Full
  • Fence: Partially fenced
  • Architectural Style: Bungalow
  • Exterior Features: Brick, Vinyl
  • Flooring: Laminate, Tile
  • Sewer: Municipal sewage system
  • Fireplaces Total: 1
Address Map
  • Location: CA, Ontario, Sudbury, P3A4E4
  • Longitude: W81° 4' 28.6''
  • Latitude: N46° 31' 32.6''
Additional Information
  • Water Source:
  • Community Features:
  • Foundation Details:
  • Stories: 1.0
Powered by REALTOR.ca
Listing updated: 2026-04-25 04:33:11
List Your Property
Mortgage Calculator
Get Pre-Approved
$
$
%
%
years
Monthly Payment (Est.) $
Listing Information
  • List Agent Key: 1919877
  • List Office Key: 79955
  • Modification Timestamp: 2026-04-24T15:10:52Z
  • Originating System Name: Sudbury Real Estate Board
  • Status Change Timestamp: 2026-04-24T15:03:14Z
Powered by REALTOR.ca
Listing updated: 2026-04-25 04:33:11
REALTOR®, REALTORS®, and the REALTOR® logo are certification marks that are owned by REALTOR® Canada Inc. and licensed exclusively to The Canadian Real Estate Association (CREA). These certification marks identify real estate professionals who are members of CREA and who must abide by CREA’s By‐Laws, Rules, and the REALTOR® Code. The MLS® trademark and the MLS® logo are owned by CREA and identify the quality of services provided by real estate professionals who are members of CREA.

The information contained on this site is based in whole or in part on information that is provided by members of The Canadian Real Estate Association, who are responsible for its accuracy. CREA reproduces and distributes this information as a service for its members and assumes no responsibility for its accuracy.

Website is operated by a brokerage or salesperson who is a member of The Canadian Real Estate Association.

The listing content on this website is protected by copyright and other laws, and is intended solely for the private, non‐commercial use by individuals. Any other reproduction, distribution or use of the content, in whole or in part, is specifically forbidden. The prohibited uses include commercial use, “screen scraping”, “database scraping”, and any other activity intended to collect, store, reorganize or manipulate data on the pages produced by or displayed on this website.

By continuing to use this website and its services, you agree to these

These forms are provided to ComFree’s Unrepresented Sellers as a part of their Mere Posting ComFree Listing Contract.

I acknowledge I can only access these forms as a ComFree customer under contract.

These forms are provided to ComFree’s Unrepresented Sellers as a part of their Mere Posting ComFree Listing Contract and in partnership with Zubic Law.

I acknowledge I can only access these forms as a ComFree customer under contract.

These forms are provided to ComFree’s Unrepresented Sellers as a part of their Mere Posting ComFree Listing Contract and in partnership with Zubic Law.

I acknowledge I can only access these forms as a ComFree customer under contract.

How It Works

1. Purchase Your Package

2. We Ship Your ‘For Sale’ Sign

3. Book Your VR Tour

4. Complete Listing Input Forms

5. We Make Your Listing Live

6. Get Support 7 Days a Week

7. iSOLD!