Share
$120,000
Saskatchewan,Melville
For Sale Active
225 680 7th AVENUE E, Melville, Saskatchewan S0A2P0
  • 1
  • 1
  • 532 Sqft
Contact Seller
Basic Details
Description

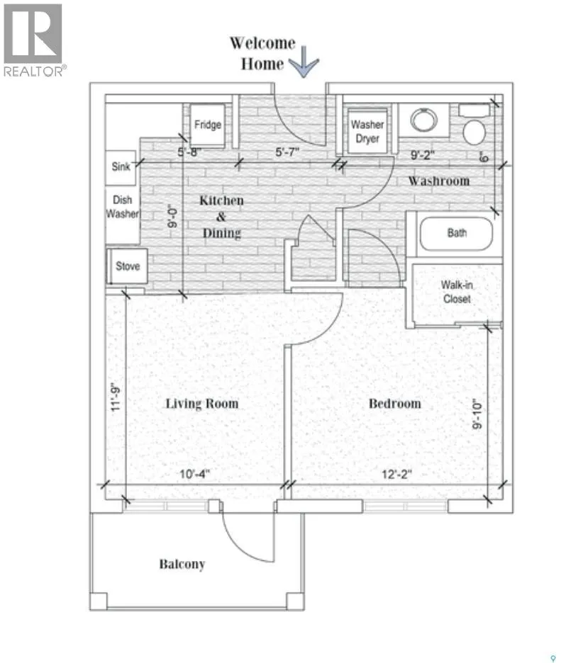
Welcome to effortless living at the charming Cumberland Villas in Melville. This inviting 532 sq. ft. one bedroom, on bathroom suite on the 2nd floor offers comfort, convenience, and thoughtful design. The eat-in kitchen flows seamlessly into a bright, spacious living area and features 4 appliances along with generous counter and cabinet space. The bedroom is well-sized with a large

closet, and the 4-piece bathroom includes stackable laundry accessible from both the foyer and bedroom for added ease. Step out onto your west facing balcony, perfect for relaxing or enjoying the fresh air. This suite includes a dedicated parking stall and access to a wide range of amenities, such as a dining and bistro area, workshop, library, elevator, lounge, and recreation center — all designed to enhance your lifestyle. At Cumberland Villas, you’ll discover a welcoming community and the perfect place to call home. *Pictures are of a staged unit – not the actual unit for sale. (id:62650)

Read More
Basic Details
  • Property Type: Residential
  • Listing Type: For Sale
  • Listing ID: SK033711
  • Price: $120,000
  • Bedrooms: 1
  • Bathrooms: 1
  • Square Footage: 532 Sqft
  • Year Built: 2012
  • Status: Active
  • Property Attached Yn: 1
  • Property Sub Type: Single Family
  • Office Key: 295764
Features & Appliances
Features
  • Heating System: Electric, Forced air
  • Cooling System: Central air conditioning
  • Parking: Other, None, Parking Space(s), Surfaced
  • Architectural Style: High rise
Address Map
  • Location: CA, Saskatchewan, Melville, S0A2P0
  • Longitude: W103° 12' 28.5''
  • Latitude: N50° 55' 50.9''
Additional Information
  • Community Features:
  • Lot Features:
  • Lot Size Dimensions: 3.18
Financial
  • Association Fee: 244.2
  • Association Fee Frequency: Monthly
  • Tax Annual Amount: 2460
Powered by REALTOR.ca
Listing updated: 2026-05-16 04:16:32
List Your Property
Mortgage Calculator
Get Pre-Approved
$
$
%
%
years
Monthly Payment (Est.) $
Listing Information
  • List Agent Key: 2079249
  • List Office Key: 295764
  • Modification Timestamp: 2026-05-06T11:35:57Z
  • Originating System Name: Saskatchewan REALTORS® Association
  • Status Change Timestamp: 2026-05-06T08:03:08Z
Powered by REALTOR.ca
Listing updated: 2026-05-16 04:16:33
REALTOR®, REALTORS®, and the REALTOR® logo are certification marks that are owned by REALTOR® Canada Inc. and licensed exclusively to The Canadian Real Estate Association (CREA). These certification marks identify real estate professionals who are members of CREA and who must abide by CREA’s By‐Laws, Rules, and the REALTOR® Code. The MLS® trademark and the MLS® logo are owned by CREA and identify the quality of services provided by real estate professionals who are members of CREA.

The information contained on this site is based in whole or in part on information that is provided by members of The Canadian Real Estate Association, who are responsible for its accuracy. CREA reproduces and distributes this information as a service for its members and assumes no responsibility for its accuracy.

Website is operated by a brokerage or salesperson who is a member of The Canadian Real Estate Association.

The listing content on this website is protected by copyright and other laws, and is intended solely for the private, non‐commercial use by individuals. Any other reproduction, distribution or use of the content, in whole or in part, is specifically forbidden. The prohibited uses include commercial use, “screen scraping”, “database scraping”, and any other activity intended to collect, store, reorganize or manipulate data on the pages produced by or displayed on this website.

By continuing to use this website and its services, you agree to these

These forms are provided to ComFree’s Unrepresented Sellers as a part of their Mere Posting ComFree Listing Contract.

I acknowledge I can only access these forms as a ComFree customer under contract.

These forms are provided to ComFree’s Unrepresented Sellers as a part of their Mere Posting ComFree Listing Contract and in partnership with Zubic Law.

I acknowledge I can only access these forms as a ComFree customer under contract.

These forms are provided to ComFree’s Unrepresented Sellers as a part of their Mere Posting ComFree Listing Contract and in partnership with Zubic Law.

I acknowledge I can only access these forms as a ComFree customer under contract.

How It Works

1. Purchase Your Package

2. We Ship Your ‘For Sale’ Sign

3. Book Your VR Tour

4. Complete Listing Input Forms

5. We Make Your Listing Live

6. Get Support 7 Days a Week

7. iSOLD!