Share
$885,000
Ontario,Mississauga (Erin Mills)
For Sale Active
3354 MAINSAIL CRESCENT, Mississauga (Erin Mills), Ontario L5L1H2
  • 4
  • 2
  • 1100 - 1500Square Feet
Next Open House
  • Apr 26 14:00 - 16:00
Basic Details
Description

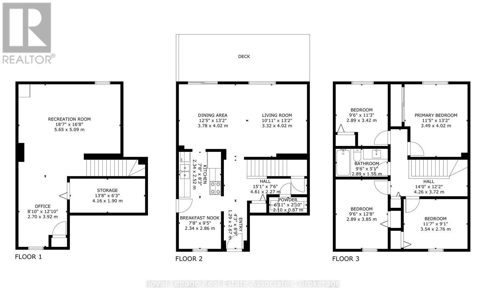
Beautifully maintained 4 bedroom semi-detached home in highly desirable Erin Mills, offering the perfect blend of space, style, and location. Great family location with two parks right at the end of the street. This home has been thoughtfully updated throughout, is move-in ready, and designed for comfortable everyday living. The renovated eat-in kitchen features butcher block style wood countertops, stainless

steel appliances, and brand new cabinetry. The beautiful new engineer hardwood floors create a modern setting throughout the whole main level. The bright open concept living/dining area has a large window and glass sliding door walking out to the backyard. Enjoy your summers in this private backyard featuring a wood deck with a gazebo, and ample space for the kids to play Four spacious bedrooms upstairs provide plenty of room for growing families, home offices, or guest accommodations. The finished basement adds valuable extra living space, perfect for a recreation room, playroom, gym, media area, or office. Close to excellent schools, parks, trails, shopping, transit, Credit Valley Hospital, Erin Mills Town Centre, Erindale & Clarkson Go Stations, and UTM Mississauga Campus. This is an exceptional opportunity to own a wonderful family home in one of Mississauga’s most established communities. Easy access to highways 403, 407 & QEW. Main floor hardwood’26, Kitchen renovations ’26 Furnace’25, AC heat pump’25, Shingles’22, Bathroom Renovation ’21, 2nd floor windows’21, Living Room Window & Patio Door’19. (id:62650)

Read More
Basic Details
  • Property Type: Residential
  • Listing Type: For Sale
  • Listing ID: W13035390
  • Price: $885,000
  • Bedrooms: 4
  • Bathrooms: 2
  • Half Bathrooms: 1
  • Square Footage: 1100 - 1500 Sqft
  • Status: Active
  • Property Attached Yn: 1
  • Property Sub Type: Single Family
  • Office Key: 93381
Features & Appliances
Features
  • Heating System: Forced air, Natural gas
  • Cooling System: Central air conditioning
  • Basement: Finished, Full
  • Parking: Garage, Attached Garage
  • Exterior Features: Brick
  • Flooring: Hardwood, Carpeted, Parquet
  • Sewer: Sanitary sewer
Address Map
  • Location: CA, Ontario, Mississauga (Erin Mills), L5L1H2
  • Street: Mainsail
  • Street Number: 3354
  • Street Suffix: Crescent
  • Longitude: W80° 18' 51.7''
  • Latitude: N43° 31' 59''
Additional Information
  • Water Source:
  • Foundation Details:
  • Lot Size Dimensions: 30.1 x 124.5 FT
  • Stories: 2.0
Financial
  • Tax Annual Amount: 5190
Powered by REALTOR.ca
Listing updated: 2026-04-23 15:36:14
List Your Property
Mortgage Calculator
Get Pre-Approved
$
$
%
%
years
Monthly Payment (Est.) $
Listing Information
  • List Agent Key: 2006187
  • List Office Key: 93381
  • Modification Timestamp: 2026-04-23T18:06:04Z
  • Originating System Name: Toronto Regional Real Estate Board
  • Status Change Timestamp: 2026-04-23T17:24:24Z
Powered by REALTOR.ca
Listing updated: 2026-04-23 15:36:15
REALTOR®, REALTORS®, and the REALTOR® logo are certification marks that are owned by REALTOR® Canada Inc. and licensed exclusively to The Canadian Real Estate Association (CREA). These certification marks identify real estate professionals who are members of CREA and who must abide by CREA’s By‐Laws, Rules, and the REALTOR® Code. The MLS® trademark and the MLS® logo are owned by CREA and identify the quality of services provided by real estate professionals who are members of CREA.

The information contained on this site is based in whole or in part on information that is provided by members of The Canadian Real Estate Association, who are responsible for its accuracy. CREA reproduces and distributes this information as a service for its members and assumes no responsibility for its accuracy.

Website is operated by a brokerage or salesperson who is a member of The Canadian Real Estate Association.

The listing content on this website is protected by copyright and other laws, and is intended solely for the private, non‐commercial use by individuals. Any other reproduction, distribution or use of the content, in whole or in part, is specifically forbidden. The prohibited uses include commercial use, “screen scraping”, “database scraping”, and any other activity intended to collect, store, reorganize or manipulate data on the pages produced by or displayed on this website.

By continuing to use this website and its services, you agree to these

These forms are provided to ComFree’s Unrepresented Sellers as a part of their Mere Posting ComFree Listing Contract.

I acknowledge I can only access these forms as a ComFree customer under contract.

These forms are provided to ComFree’s Unrepresented Sellers as a part of their Mere Posting ComFree Listing Contract and in partnership with Zubic Law.

I acknowledge I can only access these forms as a ComFree customer under contract.

These forms are provided to ComFree’s Unrepresented Sellers as a part of their Mere Posting ComFree Listing Contract and in partnership with Zubic Law.

I acknowledge I can only access these forms as a ComFree customer under contract.

How It Works

1. Purchase Your Package

2. We Ship Your ‘For Sale’ Sign

3. Book Your VR Tour

4. Complete Listing Input Forms

5. We Make Your Listing Live

6. Get Support 7 Days a Week

7. iSOLD!