Share
$929,000
British Columbia,Saanich
For Sale Active
305 990 Doumac Ave, Saanich, British Columbia V8Y1M4
  • 2
  • 2
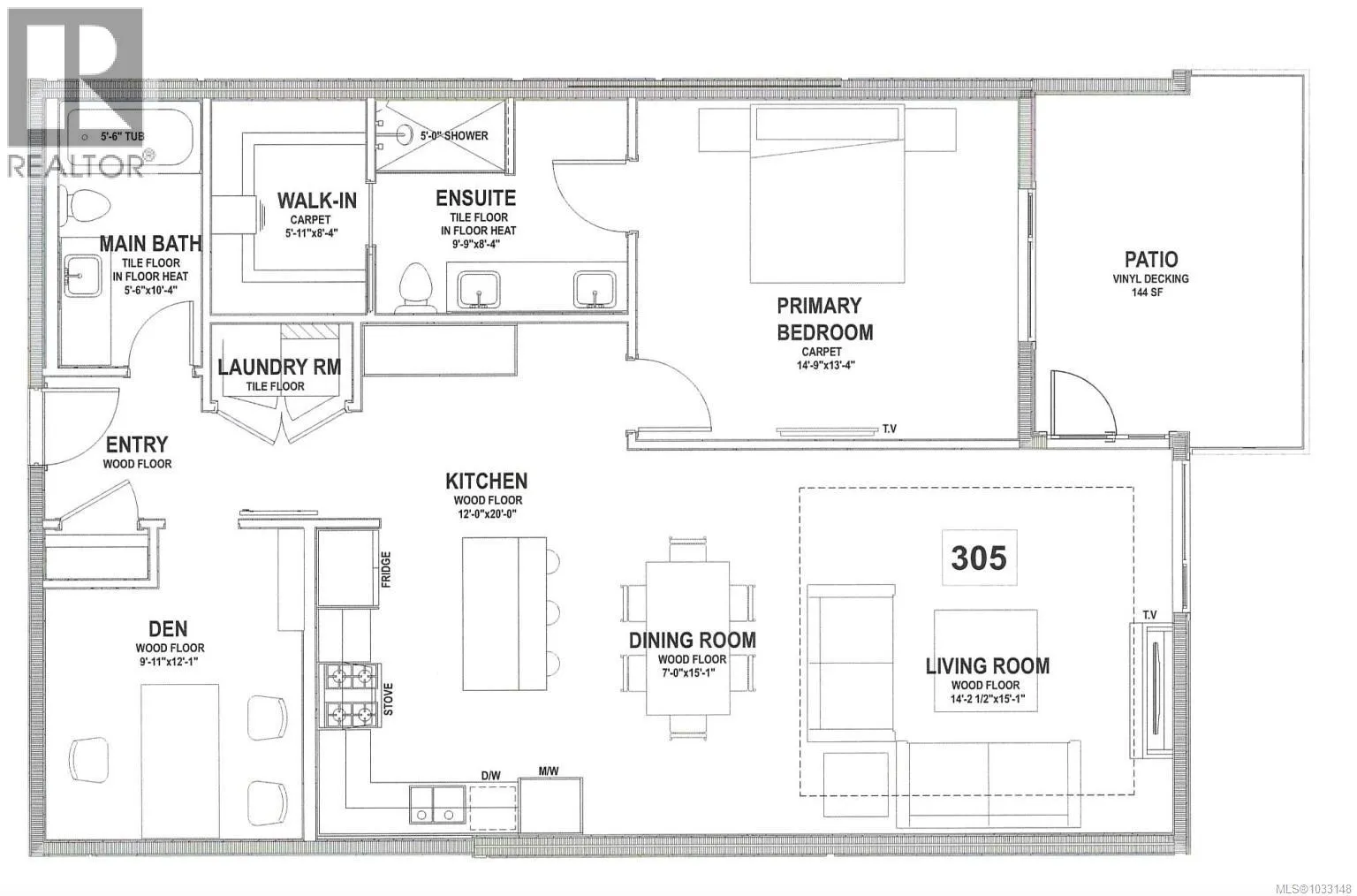
  • 1,228 Sqft
Contact Seller
Next Open House
  • Apr 25 13:00 - 15:00
  • Apr 26 13:00 - 15:00
Basic Details
Description

OH Sat 1–3pm | Just 9 homes left. Why Buy Small? This expansive 1 bed + den, 2 bath home offers over 1,200 sqft and lives like a 2 bedroom, delivering exceptional value at just over $750/sqft—among the best in the area. Offering some of the largest and most functional new construction homes, this is a rare combination of space

and value. Enjoy spacious interiors, large patios with gas connection, oversized storage, EV-ready parking, and dedicated e-bike storage. Built Green® for long-term efficiency and comfort. Developed by award-winning Città Group, this boutique collection of 17 homes showcases West Coast design and quality finishes just steps to “Victoria’s Mini Malibu.” Move in today. Limited-time: GST INCLUDED for the next 2 purchasers! (id:62650)

Read More
Basic Details
  • Property Type: Residential
  • Listing Type: For Sale
  • Listing ID: 1033148
  • Price: $929,000
  • Bedrooms: 2
  • Bathrooms: 2
  • Square Footage: 1,228 Sqft
  • Year Built: 2025
  • Status: Active
  • Property Attached Yn: 1
  • Property Sub Type: Single Family
  • Office Key: 53078
Features & Appliances
Features
  • Heating System: Heat Pump, Electric, Natural gas, Baseboard heaters
  • Cooling System: Air Conditioned, Wall unit
  • Fireplaces Total: 1
Address Map
  • Location: CA, British Columbia, Saanich, The Tides at Cordova Bay, V8Y1M4
  • Street: Doumac
  • Street Number: 990
  • Street Suffix: Avenue
  • Longitude: W124° 37' 53.1''
  • Latitude: N48° 31' 23.6''
  • Zoning: Multi-Family
Additional Information
  • Community Features:
  • Lot Size Dimensions: 1228
Financial
  • Association Fee: 446
  • Association Fee Frequency: Monthly
Powered by REALTOR.ca
Listing updated: 2026-04-24 04:05:18
List Your Property
Mortgage Calculator
Get Pre-Approved
$
$
%
%
years
Monthly Payment (Est.) $
Listing Information
  • List Agent Key: 2164534
  • List Office Key: 53078
  • Modification Timestamp: 2026-04-23T21:31:10Z
  • Originating System Name: Victoria Real Estate Board
  • Status Change Timestamp: 2026-04-23T21:30:15Z
Powered by REALTOR.ca
Listing updated: 2026-04-24 04:05:19
REALTOR®, REALTORS®, and the REALTOR® logo are certification marks that are owned by REALTOR® Canada Inc. and licensed exclusively to The Canadian Real Estate Association (CREA). These certification marks identify real estate professionals who are members of CREA and who must abide by CREA’s By‐Laws, Rules, and the REALTOR® Code. The MLS® trademark and the MLS® logo are owned by CREA and identify the quality of services provided by real estate professionals who are members of CREA.

The information contained on this site is based in whole or in part on information that is provided by members of The Canadian Real Estate Association, who are responsible for its accuracy. CREA reproduces and distributes this information as a service for its members and assumes no responsibility for its accuracy.

Website is operated by a brokerage or salesperson who is a member of The Canadian Real Estate Association.

The listing content on this website is protected by copyright and other laws, and is intended solely for the private, non‐commercial use by individuals. Any other reproduction, distribution or use of the content, in whole or in part, is specifically forbidden. The prohibited uses include commercial use, “screen scraping”, “database scraping”, and any other activity intended to collect, store, reorganize or manipulate data on the pages produced by or displayed on this website.

By continuing to use this website and its services, you agree to these

These forms are provided to ComFree’s Unrepresented Sellers as a part of their Mere Posting ComFree Listing Contract.

I acknowledge I can only access these forms as a ComFree customer under contract.

These forms are provided to ComFree’s Unrepresented Sellers as a part of their Mere Posting ComFree Listing Contract and in partnership with Zubic Law.

I acknowledge I can only access these forms as a ComFree customer under contract.

These forms are provided to ComFree’s Unrepresented Sellers as a part of their Mere Posting ComFree Listing Contract and in partnership with Zubic Law.

I acknowledge I can only access these forms as a ComFree customer under contract.

How It Works

1. Purchase Your Package

2. We Ship Your ‘For Sale’ Sign

3. Book Your VR Tour

4. Complete Listing Input Forms

5. We Make Your Listing Live

6. Get Support 7 Days a Week

7. iSOLD!