Share
$999,900
Ontario,Tecumseh
For Sale Active
2071 EUGENI, Tecumseh, Ontario N9K1B3
  • 4
  • 3
  • 3,320 Sqft
Basic Details
Description

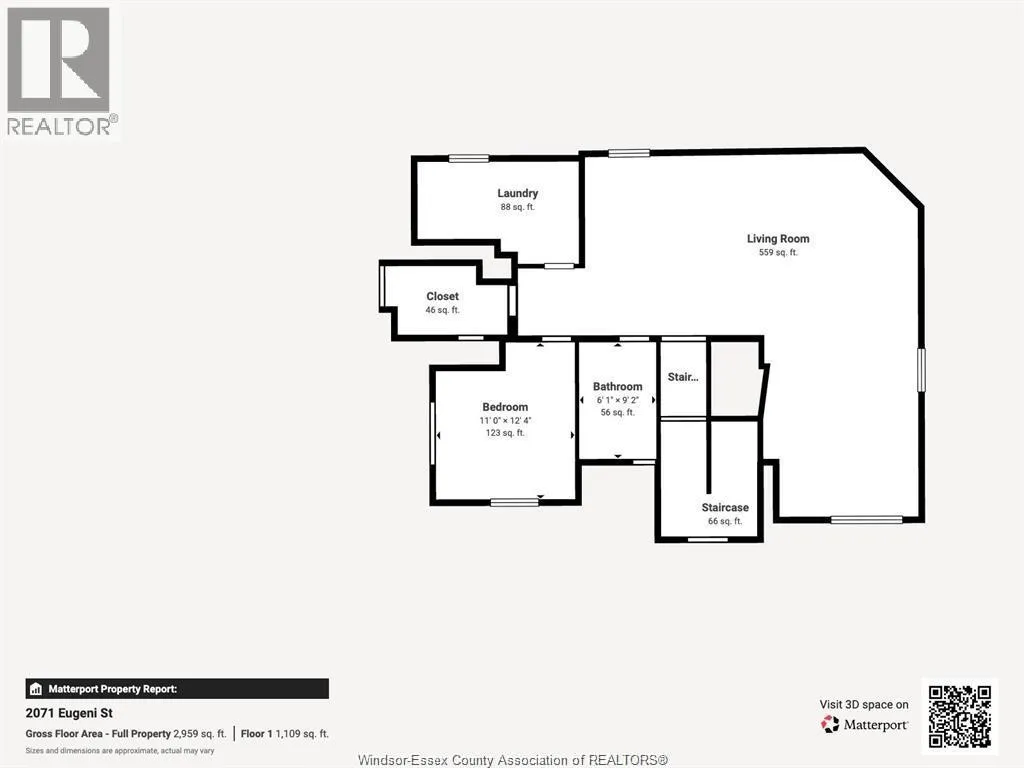
Stunning Raised Ranch with Bonus Level & Resort-Style Backyard. Offering 3, 320 sq. ft. of beautifully finished living space, this exceptional r-ranch blends modern comfort with thoughtful design across three impressive levels. Located in a desirable neighborhood, the home features 4 bedrooms, 3 full baths, and a 2-car attached garage with convenient grade entrance to the lower level. Main floor

features hardwood flrg, living room, dining room, eating area, and Euro-style kitchen with granite countertops. Two bedrooms and a 4pc bath complete this level. Bonus level includes a private primary suite with Brazilian cherry hardwood, walk-in closet, and modern 4pc ensuite w/ Cambria quartz countertops & Ditra in-floor heating . Lower level is finished with slate flrg, spacious family room, games area with bar and gas fireplace, 4th bdrm, 3pc bath, Laundry, & mud rm. Exterior offers a fenced yard, two-tiered deck, and inground sports pool. A well-designed home with exceptional space for family living and entertaining. (id:62650)

Read More
Basic Details
  • Property Type: Residential
  • Listing Type: For Sale
  • Listing ID: 26009033
  • Price: $999,900
  • Bedrooms: 4
  • Bathrooms: 3
  • Square Footage: 3,320 Sqft
  • Status: Active
  • Property Sub Type: Single Family
  • Office Key: 187768
Features & Appliances
Features
  • Swimming Pool: Indoor pool, Pool equipment
  • Heating System: Forced air, Natural gas
  • Cooling System: Central air conditioning
  • Fence: Fence
  • Fireplace: Gas, Direct vent
  • Parking: Garage, Attached Garage
  • Architectural Style: Raised Ranch w/ Bonus Room
  • Exterior Features: Brick, Aluminum/Vinyl
  • Flooring: Hardwood, Ceramic/Porcelain
  • Fireplaces Total: 1
Address Map
  • Location: CA, Ontario, Tecumseh, N9K1B3
  • Street: EUGENI
  • Street Number: 2071
  • Longitude: W83° 7' 19.5''
  • Latitude: N42° 17' 28.5''
Additional Information
  • Foundation Details:
  • Lot Features:
  • Lot Size Dimensions: 60 X IRREG
Powered by REALTOR.ca
Listing updated: 2026-05-30 23:31:38
List Your Property
Mortgage Calculator
Get Pre-Approved
$
$
%
%
years
Monthly Payment (Est.) $
Listing Information
  • List Agent Key: 1397920
  • List Office Key: 187768
  • Modification Timestamp: 2026-04-23T19:55:46Z
  • Originating System Name: Windsor-Essex County Association of REALTORS®
  • Status Change Timestamp: 2026-04-23T19:29:29Z
Powered by REALTOR.ca
Listing updated: 2026-05-30 23:31:39
REALTOR®, REALTORS®, and the REALTOR® logo are certification marks that are owned by REALTOR® Canada Inc. and licensed exclusively to The Canadian Real Estate Association (CREA). These certification marks identify real estate professionals who are members of CREA and who must abide by CREA’s By‐Laws, Rules, and the REALTOR® Code. The MLS® trademark and the MLS® logo are owned by CREA and identify the quality of services provided by real estate professionals who are members of CREA.

The information contained on this site is based in whole or in part on information that is provided by members of The Canadian Real Estate Association, who are responsible for its accuracy. CREA reproduces and distributes this information as a service for its members and assumes no responsibility for its accuracy.

Website is operated by a brokerage or salesperson who is a member of The Canadian Real Estate Association.

The listing content on this website is protected by copyright and other laws, and is intended solely for the private, non‐commercial use by individuals. Any other reproduction, distribution or use of the content, in whole or in part, is specifically forbidden. The prohibited uses include commercial use, “screen scraping”, “database scraping”, and any other activity intended to collect, store, reorganize or manipulate data on the pages produced by or displayed on this website.

By continuing to use this website and its services, you agree to these

These forms are provided to ComFree’s Unrepresented Sellers as a part of their Mere Posting ComFree Listing Contract.

I acknowledge I can only access these forms as a ComFree customer under contract.

These forms are provided to ComFree’s Unrepresented Sellers as a part of their Mere Posting ComFree Listing Contract and in partnership with Zubic Law.

I acknowledge I can only access these forms as a ComFree customer under contract.

These forms are provided to ComFree’s Unrepresented Sellers as a part of their Mere Posting ComFree Listing Contract and in partnership with Zubic Law.

I acknowledge I can only access these forms as a ComFree customer under contract.

How It Works

1. Purchase Your Package

2. We Ship Your ‘For Sale’ Sign

3. Book Your VR Tour

4. Complete Listing Input Forms

5. We Make Your Listing Live

6. Get Support 7 Days a Week

7. iSOLD!