Share
$349,900
Ontario,Pelham (Fenwick)
For Sale Active
LOT 17 RIVER ROAD, Pelham (Fenwick), Ontario L0S1C0
Contact Seller
Basic Details
Description

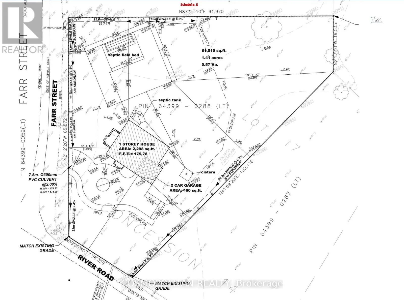
PRICED TO SELL – BUILD YOUR DREAM ESTATE ON A RARE 1.42 ACRE LOT IN PRESTIGIOUS PELHAM – a standout opportunity in a HIGH-END ESTATE COMMUNITY surrounded by LUXURY CUSTOM HOMES, just minutes from the WELLAND RIVER, CONSERVATION AREAS, TRAILS, AND AMENITIES. This premium 1.42 ACRE LOT offers an ideal footprint for a private residence with exceptional curb appeal and

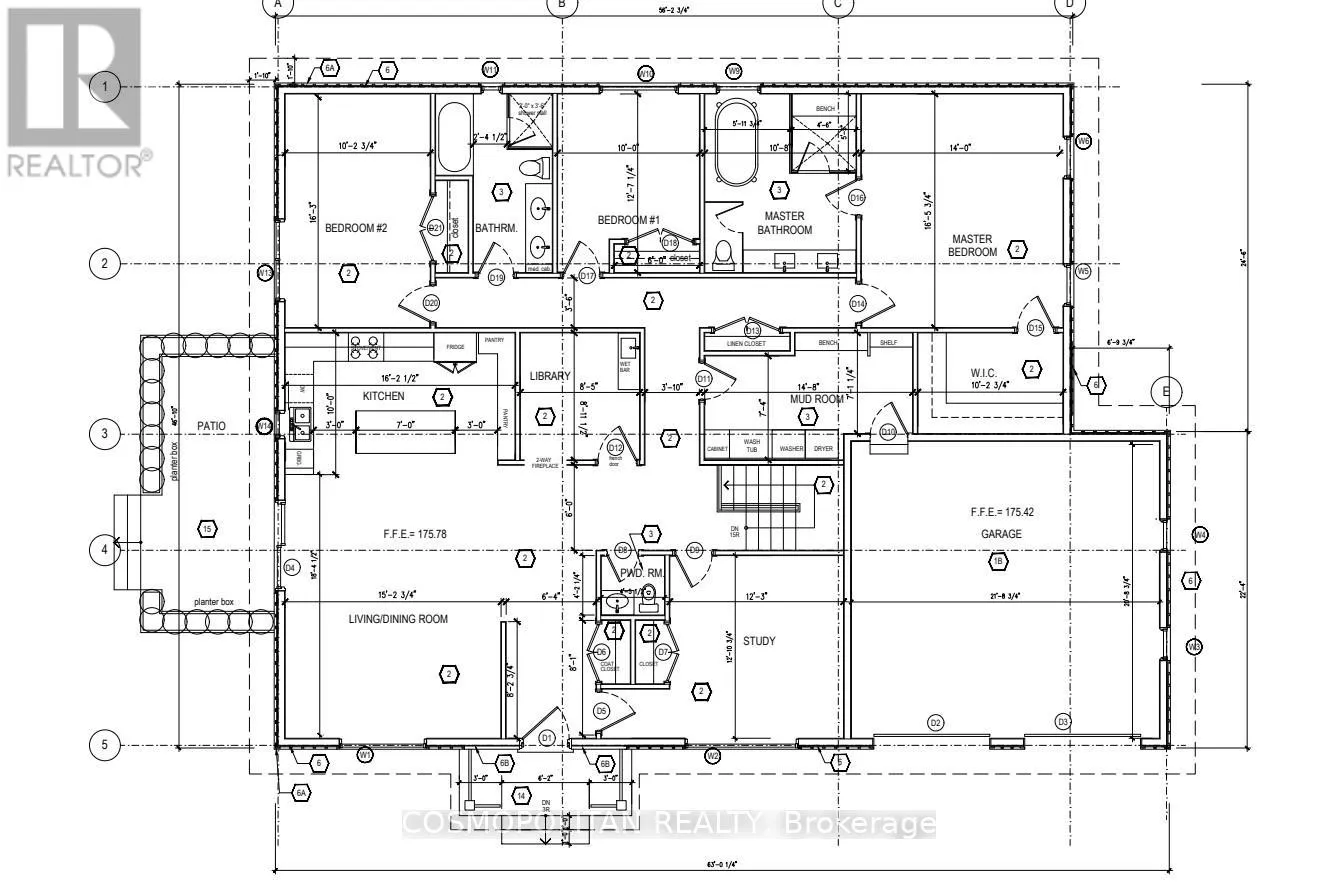
is READY FOR CONSTRUCTION, saving months of planning and carrying costs. PROPOSED PLANS AVAILABLE for a beautifully designed ~2,298 SQ.FT. CUSTOM BUNGALOW (3 BED, 3 BATH), allowing you to move forward with confidence or customize to your vision. Property is designed for CISTERN & SEPTIC, with HYDRO & GAS AVAILABLE AT THE LOT LINE. Enjoy the perfect balance of PEACE, PRIVACY, AND SPACE while remaining close to SCHOOLS, SHOPPING, AND QUICK ACCESS TO NIAGARA & QEW CORRIDORS. Whether you’re an end-user building your FOREVER HOME or an investor seeking a SHOVEL-READY PROJECT WITH STRONG UPSIDE, this is a RARE OPPORTUNITY IN ONE OF PELHAM’S MOST DESIRABLE LOCATIONS. (id:62650)

Read More
Basic Details
  • Property Type: Residential
  • Listing Type: For Sale
  • Listing ID: X13038608
  • Price: $349,900
  • Status: Active
  • Property Sub Type: Vacant Land
  • Office Key: 286523
Features & Appliances
Features
  • Sewer: Septic System
  • Utilities: Electricity
Address Map
  • Location: CA, Ontario, Pelham (Fenwick), L0S1C0
  • Street: RIVER
  • Street Number: LOT 17
  • Street Suffix: Road
  • Longitude: W80° 39' 57.3''
  • Latitude: N42° 58' 31.5''
Additional Information
  • Water Source:
  • Lot Size Dimensions: 86.64 x 329.92 Acre ; Lot is Irregular
Financial
  • Tax Annual Amount: 1697.24
Powered by REALTOR.ca
Listing updated: 2026-04-25 19:46:42
List Your Property
Mortgage Calculator
Get Pre-Approved
$
$
%
%
years
Monthly Payment (Est.) $
Listing Information
  • List Agent Key: 2088555
  • List Office Key: 286523
  • Modification Timestamp: 2026-04-24T01:35:11Z
  • Originating System Name: Niagara Association of REALTORS®
  • Status Change Timestamp: 2026-04-24T01:25:22Z
Powered by REALTOR.ca
Listing updated: 2026-04-25 19:46:42
REALTOR®, REALTORS®, and the REALTOR® logo are certification marks that are owned by REALTOR® Canada Inc. and licensed exclusively to The Canadian Real Estate Association (CREA). These certification marks identify real estate professionals who are members of CREA and who must abide by CREA’s By‐Laws, Rules, and the REALTOR® Code. The MLS® trademark and the MLS® logo are owned by CREA and identify the quality of services provided by real estate professionals who are members of CREA.

The information contained on this site is based in whole or in part on information that is provided by members of The Canadian Real Estate Association, who are responsible for its accuracy. CREA reproduces and distributes this information as a service for its members and assumes no responsibility for its accuracy.

Website is operated by a brokerage or salesperson who is a member of The Canadian Real Estate Association.

The listing content on this website is protected by copyright and other laws, and is intended solely for the private, non‐commercial use by individuals. Any other reproduction, distribution or use of the content, in whole or in part, is specifically forbidden. The prohibited uses include commercial use, “screen scraping”, “database scraping”, and any other activity intended to collect, store, reorganize or manipulate data on the pages produced by or displayed on this website.

By continuing to use this website and its services, you agree to these

These forms are provided to ComFree’s Unrepresented Sellers as a part of their Mere Posting ComFree Listing Contract.

I acknowledge I can only access these forms as a ComFree customer under contract.

These forms are provided to ComFree’s Unrepresented Sellers as a part of their Mere Posting ComFree Listing Contract and in partnership with Zubic Law.

I acknowledge I can only access these forms as a ComFree customer under contract.

These forms are provided to ComFree’s Unrepresented Sellers as a part of their Mere Posting ComFree Listing Contract and in partnership with Zubic Law.

I acknowledge I can only access these forms as a ComFree customer under contract.

How It Works

1. Purchase Your Package

2. We Ship Your ‘For Sale’ Sign

3. Book Your VR Tour

4. Complete Listing Input Forms

5. We Make Your Listing Live

6. Get Support 7 Days a Week

7. iSOLD!