Share
$1,299,000
Ontario,Huntsville
For Sale Active
23 GLEN EAGLE Court, Huntsville, Ontario P1H1B1
  • 1,860 Sqft
Contact Seller
Basic Details
Description

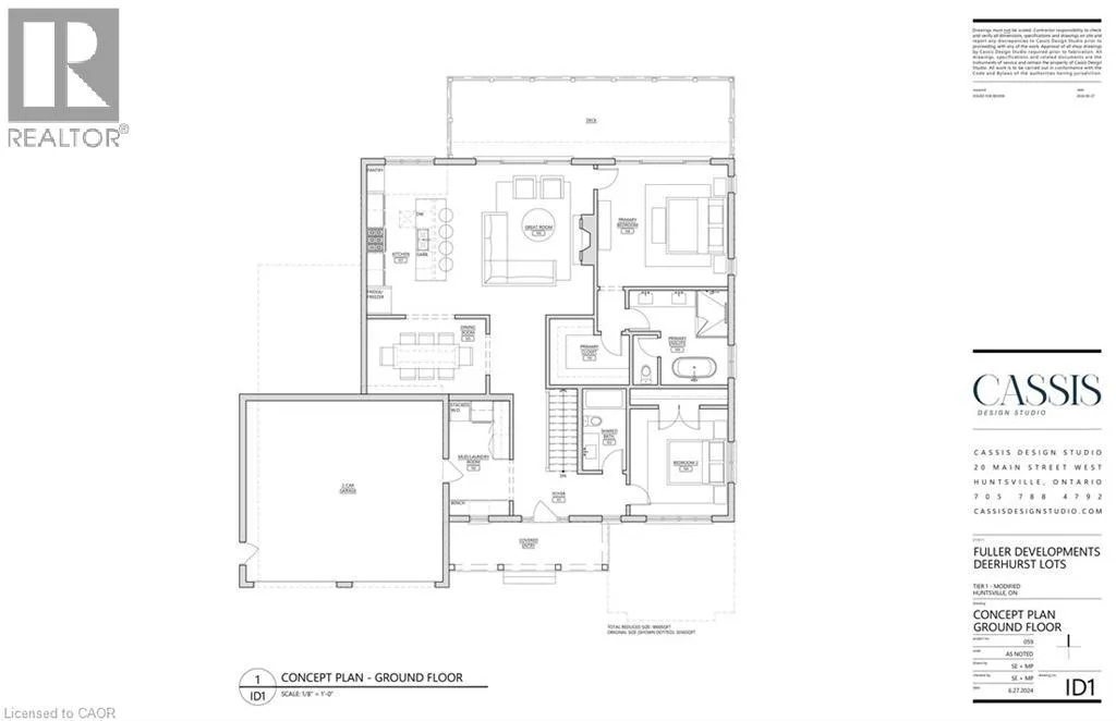
23 Glen Eagle Court offers a rare opportunity to own within the prestigious Deerhurst Highlands Golf Course community. Situated directly on the course, this stunning Fuller Developments custom build is ready for your personal touches, design selections, and final vision. This thoughtfully designed 1,860 sq ft bungalow showcases an open concept layout filled with natural light, soaring ceilings, and upscale

custom finishes throughout. Every detail has been curated to blend modern comfort with timeless Muskoka-inspired elegance. Enjoy main floor living at its finest with spacious principal rooms, premium craftsmanship, and seamless indoor-outdoor flow in one of the area’s most sought after golf course settings. Whether as a full time residence or luxury retreat, this is your chance to customize and complete a remarkable home in an unbeatable location. (id:62650)

Read More
Basic Details
  • Property Type: Residential
  • Listing Type: For Sale
  • Listing ID: 40823561
  • Price: $1,299,000
  • Square Footage: 1,860 Sqft
  • Status: Active
  • Property Sub Type: Single Family
  • Office Key: 292877
Features & Appliances
Features
  • Heating System: Boiler, Forced air, Natural gas, In Floor Heating, Radiant heat
  • Cooling System: Central air conditioning
  • Basement: Full, Unfinished
  • Parking: Attached Garage
  • Architectural Style: Bungalow
  • Exterior Features: Other, Stone
  • Sewer: Municipal sewage system
  • Utilities: Natural Gas, Electricity, Cable, Telephone
Address Map
  • Location: CA, Ontario, Huntsville, Chaffey, P1H1B1
  • Street: GLEN EAGLE
  • Street Number: 23
  • Street Suffix: Court
  • Longitude: W80° 51' 23.9''
  • Latitude: N45° 21' 6.7''
Additional Information
  • Water Source:
  • Community Features:
  • Foundation Details:
  • Stories: 1.0
Financial
  • Tax Annual Amount: 760
Powered by REALTOR.ca
Listing updated: 2026-05-18 13:02:49
List Your Property
Mortgage Calculator
Get Pre-Approved
$
$
%
%
years
Monthly Payment (Est.) $
Listing Information
  • List Agent Key: 1941951
  • List Office Key: 292877
  • Modification Timestamp: 2026-04-24T01:15:14Z
  • Originating System Name: Cornerstone Association of REALTORS®
  • Status Change Timestamp: 2026-04-24T01:11:04Z
Powered by REALTOR.ca
Listing updated: 2026-05-18 13:02:50
REALTOR®, REALTORS®, and the REALTOR® logo are certification marks that are owned by REALTOR® Canada Inc. and licensed exclusively to The Canadian Real Estate Association (CREA). These certification marks identify real estate professionals who are members of CREA and who must abide by CREA’s By‐Laws, Rules, and the REALTOR® Code. The MLS® trademark and the MLS® logo are owned by CREA and identify the quality of services provided by real estate professionals who are members of CREA.

The information contained on this site is based in whole or in part on information that is provided by members of The Canadian Real Estate Association, who are responsible for its accuracy. CREA reproduces and distributes this information as a service for its members and assumes no responsibility for its accuracy.

Website is operated by a brokerage or salesperson who is a member of The Canadian Real Estate Association.

The listing content on this website is protected by copyright and other laws, and is intended solely for the private, non‐commercial use by individuals. Any other reproduction, distribution or use of the content, in whole or in part, is specifically forbidden. The prohibited uses include commercial use, “screen scraping”, “database scraping”, and any other activity intended to collect, store, reorganize or manipulate data on the pages produced by or displayed on this website.

By continuing to use this website and its services, you agree to these

These forms are provided to ComFree’s Unrepresented Sellers as a part of their Mere Posting ComFree Listing Contract.

I acknowledge I can only access these forms as a ComFree customer under contract.

These forms are provided to ComFree’s Unrepresented Sellers as a part of their Mere Posting ComFree Listing Contract and in partnership with Zubic Law.

I acknowledge I can only access these forms as a ComFree customer under contract.

These forms are provided to ComFree’s Unrepresented Sellers as a part of their Mere Posting ComFree Listing Contract and in partnership with Zubic Law.

I acknowledge I can only access these forms as a ComFree customer under contract.

How It Works

1. Purchase Your Package

2. We Ship Your ‘For Sale’ Sign

3. Book Your VR Tour

4. Complete Listing Input Forms

5. We Make Your Listing Live

6. Get Support 7 Days a Week

7. iSOLD!