Share
$759,900
Ontario,Tay (Waubaushene)
For Sale Active
329 & 331 BROWNS LINE, Tay (Waubaushene), Ontario L0K2C0
  • 3
  • 2
  • 700 - 1100Square Feet
Basic Details
Description

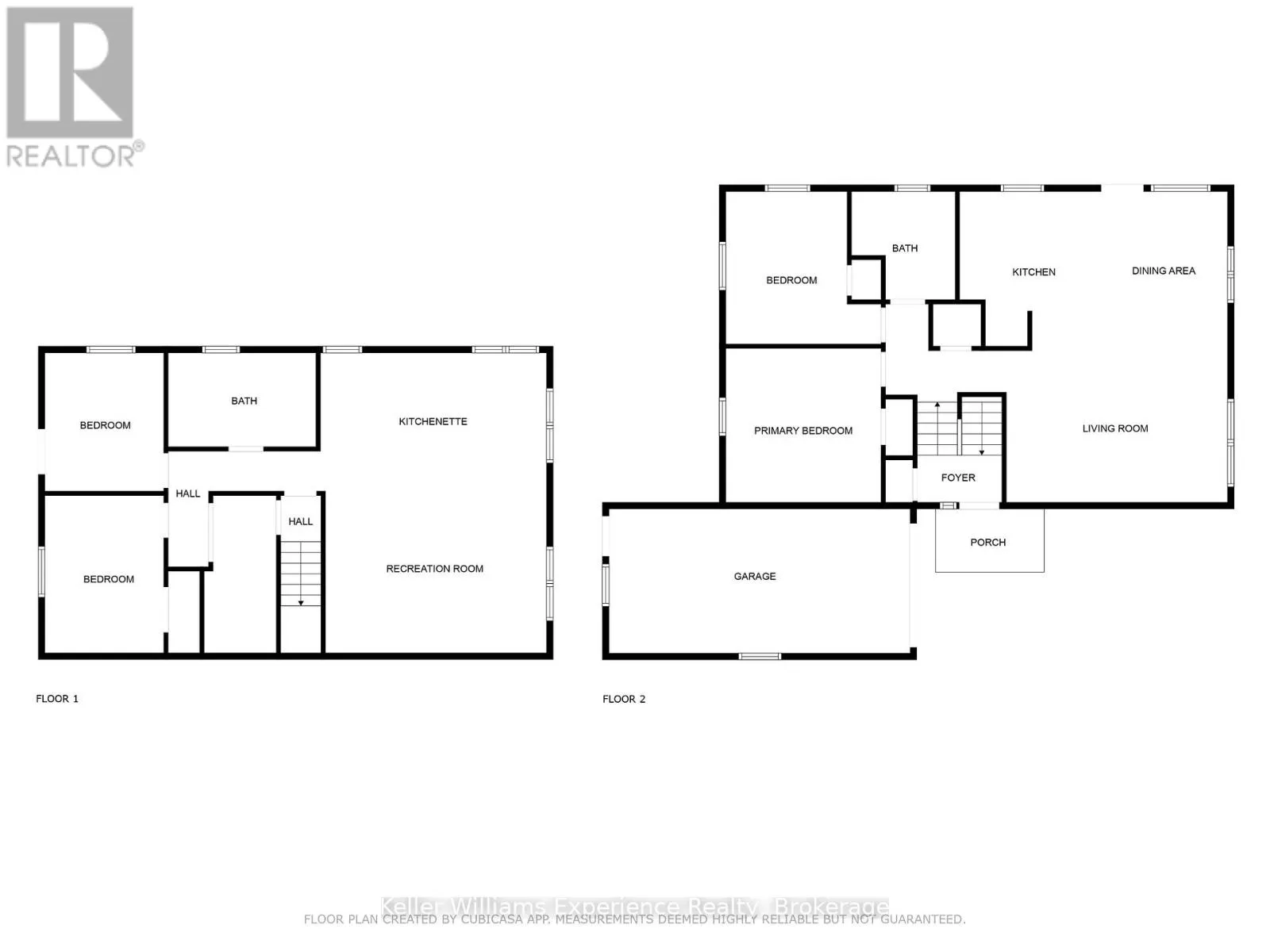
Rare Double Lot. Multi-Generational Setup. Endless Storage.Welcome to 329 & 331 Browns Line Road – a beautifully maintained raised bungalow offering over 2,000 sq ft of finished living space across two fully self-contained levels.The main floor features 2 bedrooms, a renovated 4-piece bath, and an updated kitchen filled with natural light. The lower level offers a private 1-bedroom suite with

its own full kitchen and bath – perfect for extended family or flexible living.What makes this property exceptional?Two separately deeded 50 x 140 ft lots included on a dead end road.That means space for trailers, boats, snowmobiles, ATVs, gardens, and more – with a negotiable sea container for additional storage. The backyard has been professionally redesigned with raised beds and a private patio retreat.Located across from Waubaushene Beaches Provincial Park and just 1.3 km to Georgian Bay water access and the Trans Canada Trail. Less than 2 minutes to Hwy 400 – 35 minutes to Barrie, 90 minutes to Toronto.Built in 1998 | Septic + Municipal Water | Taxes approx. $2,703Space. Privacy. Flexibility. And a double lot – a rare find in Waubaushene. (id:59439)

Read More
Basic Details
  • Property Type: Residential
  • Listing Type: For Sale
  • Listing ID: S13042470
  • Price: $759,900
  • Bedrooms: 3
  • Bathrooms: 2
  • Square Footage: 700 - 1100 Sqft
  • Status: Active
  • Property Sub Type: Single Family
  • Office Key: 292830
Features & Appliances
Features
  • Heating System: Forced air, Natural gas
  • Cooling System: Central air conditioning
  • Basement: Finished, N/A, Walk out
  • Parking: Garage, Attached Garage
  • Architectural Style: Raised bungalow
  • Exterior Features: Vinyl siding
  • Sewer: Septic System
  • Utilities: Cable
Address Map
  • Location: CA, Ontario, Tay (Waubaushene), L0K2C0
  • Street: Browns
  • Street Number: 329 & 331
  • Street Suffix: Line
  • Longitude: W80° 17' 11.9''
  • Latitude: N44° 44' 58.5''
Additional Information
  • Water Source:
  • Foundation Details:
  • Lot Features:
  • Lot Size Dimensions: 100 x 149.1 FT
  • Stories: 1.0
Financial
  • Tax Annual Amount: 2824
Powered by REALTOR.ca
Listing updated: 2026-04-26 17:27:41
List Your Property
Mortgage Calculator
Get Pre-Approved
$
$
%
%
years
Monthly Payment (Est.) $
Listing Information
  • List Agent Key: 2024774
  • List Office Key: 292830
  • Modification Timestamp: 2026-04-24T20:10:33Z
  • Originating System Name: OnePoint Association of REALTORS®
  • Status Change Timestamp: 2026-04-24T20:00:53Z
Powered by REALTOR.ca
Listing updated: 2026-04-26 17:27:42
REALTOR®, REALTORS®, and the REALTOR® logo are certification marks that are owned by REALTOR® Canada Inc. and licensed exclusively to The Canadian Real Estate Association (CREA). These certification marks identify real estate professionals who are members of CREA and who must abide by CREA’s By‐Laws, Rules, and the REALTOR® Code. The MLS® trademark and the MLS® logo are owned by CREA and identify the quality of services provided by real estate professionals who are members of CREA.

The information contained on this site is based in whole or in part on information that is provided by members of The Canadian Real Estate Association, who are responsible for its accuracy. CREA reproduces and distributes this information as a service for its members and assumes no responsibility for its accuracy.

Website is operated by a brokerage or salesperson who is a member of The Canadian Real Estate Association.

The listing content on this website is protected by copyright and other laws, and is intended solely for the private, non‐commercial use by individuals. Any other reproduction, distribution or use of the content, in whole or in part, is specifically forbidden. The prohibited uses include commercial use, “screen scraping”, “database scraping”, and any other activity intended to collect, store, reorganize or manipulate data on the pages produced by or displayed on this website.

By continuing to use this website and its services, you agree to these

These forms are provided to ComFree’s Unrepresented Sellers as a part of their Mere Posting ComFree Listing Contract.

I acknowledge I can only access these forms as a ComFree customer under contract.

These forms are provided to ComFree’s Unrepresented Sellers as a part of their Mere Posting ComFree Listing Contract and in partnership with Zubic Law.

I acknowledge I can only access these forms as a ComFree customer under contract.

These forms are provided to ComFree’s Unrepresented Sellers as a part of their Mere Posting ComFree Listing Contract and in partnership with Zubic Law.

I acknowledge I can only access these forms as a ComFree customer under contract.

How It Works

1. Purchase Your Package

2. We Ship Your ‘For Sale’ Sign

3. Book Your VR Tour

4. Complete Listing Input Forms

5. We Make Your Listing Live

6. Get Support 7 Days a Week

7. iSOLD!