Share
$449,900
Nova Scotia,North Kentville
For Sale Active
Lot # 125 Portion of 55505192 Covey Drive Drive, North Kentville, Nova Scotia B4N0H8
  • 2
  • 2
  • 1,029 Sqft
Contact Seller
Basic Details
Description

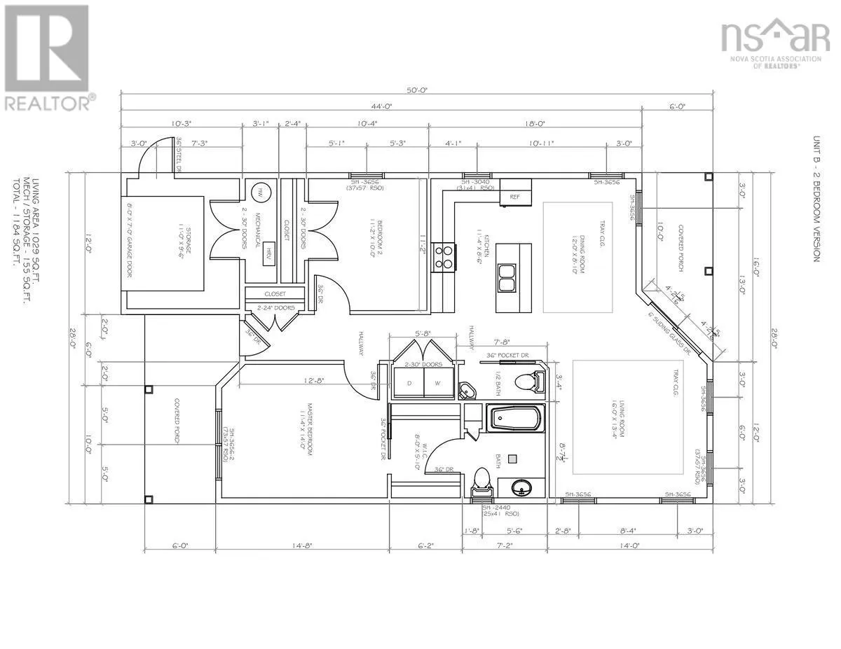
Introducing the Valley Cottage Collection! Why rent when you could own this brand new home?! It features two bedrooms and 1.5 baths. The main level offers a spacious open-concept. A heat pump is located in this area to provide comfort in all seasons. The kitchen is equipped with a sit-up center island and a pantry closet. The half bath is

conveniently located, offering easy access for guests. You can access the deck via patio doors. Large windows are found throughout to allow for lots of natural light. The Primary bedroom is equipped with a walk-in closet and an ensuite bath. The second bedroom boasts a double closet. The laundry area allows you to have a full size washer and dryer. In addition to the Mechanical room, you’ll find a 11′ x 9’6 storage room. It’s equipped with a side door, plus a full size garage door, so you can easily store your ride-on mower, golf cart & more! The lawn will be sodded and the driveway will be paved. Allowances are being offered for flooring, lighting and cabinets. Appliance packages are being offered at an additional cost. Room & lot sizes are approximate, based on plans. The lot is to be subdivided prior to closing. You can enjoy the added convenience of Municipal water & sewer and County taxes. Sidewalks are located nearby. A quick commute takes you to Kentville, New Minas, Hwy # 101 access and Wolfville, where youll find Acadia University. There are so many things to see and do in the Annapolis Valley. There are many award-winning wineries, fresh seafood restaurants, live theatre, unique shops and Kingsport, where youll find some of the highest tides in the world! (id:62650)

Read More
Basic Details
  • Property Type: Residential
  • Listing Type: For Sale
  • Listing ID: 202608588
  • Price: $449,900
  • Bedrooms: 2
  • Bathrooms: 2
  • Half Bathrooms: 1
  • Square Footage: 1,029 Sqft
  • Status: Active
  • Property Sub Type: Single Family
  • Office Key: 52624
Features & Appliances
Features
  • Cooling System: Heat Pump
  • Basement: None
  • Parking: Paved Yard
  • Architectural Style: Bungalow
  • Exterior Features: Vinyl
  • Flooring: Vinyl Plank
  • Sewer: Municipal sewage system
Address Map
  • Location: CA, Nova Scotia, North Kentville, B4N0H8
  • Street: Lot # 125 Portion of 55505192 Covey Drive
  • Street Suffix: Drive
  • Longitude: W65° 30' 27''
  • Latitude: N45° 5' 32.7''
Additional Information
  • Water Source:
  • Accessibility Features:
  • Community Features:
  • Foundation Details:
  • Lot Size Dimensions: 0.1636
  • Stories: 1.0
Powered by REALTOR.ca
Listing updated: 2026-04-26 19:08:36
List Your Property
Mortgage Calculator
Get Pre-Approved
$
$
%
%
years
Monthly Payment (Est.) $
Listing Information
  • List Agent Key: 1433880
  • List Office Key: 52624
  • Modification Timestamp: 2026-04-24T19:55:22Z
  • Originating System Name: Nova Scotia Association of REALTORS®
  • Status Change Timestamp: 2026-04-24T19:49:59Z
Powered by REALTOR.ca
Listing updated: 2026-04-26 19:08:37
REALTOR®, REALTORS®, and the REALTOR® logo are certification marks that are owned by REALTOR® Canada Inc. and licensed exclusively to The Canadian Real Estate Association (CREA). These certification marks identify real estate professionals who are members of CREA and who must abide by CREA’s By‐Laws, Rules, and the REALTOR® Code. The MLS® trademark and the MLS® logo are owned by CREA and identify the quality of services provided by real estate professionals who are members of CREA.

The information contained on this site is based in whole or in part on information that is provided by members of The Canadian Real Estate Association, who are responsible for its accuracy. CREA reproduces and distributes this information as a service for its members and assumes no responsibility for its accuracy.

Website is operated by a brokerage or salesperson who is a member of The Canadian Real Estate Association.

The listing content on this website is protected by copyright and other laws, and is intended solely for the private, non‐commercial use by individuals. Any other reproduction, distribution or use of the content, in whole or in part, is specifically forbidden. The prohibited uses include commercial use, “screen scraping”, “database scraping”, and any other activity intended to collect, store, reorganize or manipulate data on the pages produced by or displayed on this website.

By continuing to use this website and its services, you agree to these

These forms are provided to ComFree’s Unrepresented Sellers as a part of their Mere Posting ComFree Listing Contract.

I acknowledge I can only access these forms as a ComFree customer under contract.

These forms are provided to ComFree’s Unrepresented Sellers as a part of their Mere Posting ComFree Listing Contract and in partnership with Zubic Law.

I acknowledge I can only access these forms as a ComFree customer under contract.

These forms are provided to ComFree’s Unrepresented Sellers as a part of their Mere Posting ComFree Listing Contract and in partnership with Zubic Law.

I acknowledge I can only access these forms as a ComFree customer under contract.

How It Works

1. Purchase Your Package

2. We Ship Your ‘For Sale’ Sign

3. Book Your VR Tour

4. Complete Listing Input Forms

5. We Make Your Listing Live

6. Get Support 7 Days a Week

7. iSOLD!