Share
$415,000
Ontario,Waterloo
For Sale Active
B603 - 62 BALSAM STREET, Waterloo, Ontario N2L3H2
  • 2
  • 2
  • 700 - 799Square Feet
Basic Details
Description

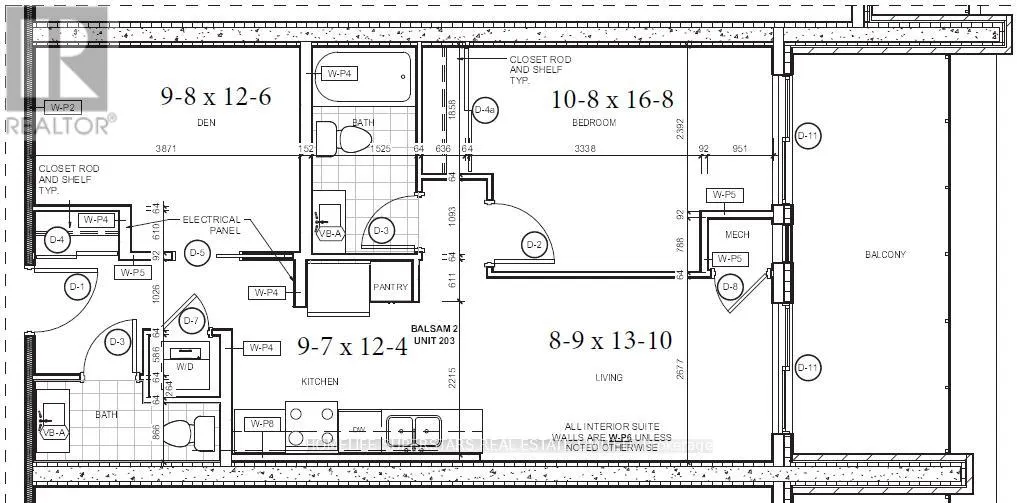
Unit B603 in Sage 3 overlooks Wilfrid Laurier School of Business. If you want minimal street noise, this Penthouse unit is ideal for your personal living or renting out. The unit was rented out for $2200 Per month until last week. Situated most conveniently at a walking distance to Laurier, University of Waterloo, Conestoga College, Public Transit, Restaurants and shopping.

The Condo is equipped with high End finishes and has been painted recently in lighter shades. This 1+1 Bedroom condo boasts of 777 sqft of living space and an additional 126 sqft of Balcony. Large Master Bedroom has a walk-out to the Balcony. The Den is the size of an average second bedroom. Kitchen is equipped with Granite countertops, all Stainless Steel appliances, An Ample Cabinetry, Separate Laundry room is fitted with a stacked Washer and Dryer. The unit comes furnished with all existing furniture, and a brand new Phillips TV. For this 900 total Sqft unit, maintenance fee is very reasonable that covers Water, Gas, High Speed Internet and Common area maintenance. If you are looking to own a hassle-free property in Waterloo, B603 is the unit for you. (id:62650)

Read More
Basic Details
  • Property Type: Residential
  • Listing Type: For Sale
  • Listing ID: X13044836
  • Price: $415,000
  • Bedrooms: 2
  • Bathrooms: 2
  • Half Bathrooms: 1
  • View: City view
  • Square Footage: 700 - 799 Sqft
  • Status: Active
  • Property Attached Yn: 1
  • Property Sub Type: Single Family
  • Office Key: 50115
Features & Appliances
Features
  • Heating System: Forced air, Natural gas
  • Cooling System: Central air conditioning
  • Basement: None
  • Parking: No Garage
  • Exterior Features: Brick Facing, Concrete Block
  • Flooring: Laminate
Address Map
  • Location: CA, Ontario, Waterloo, N2L3H2
  • Street: Balsam
  • Street Number: 62
  • Street Suffix: Street
  • Longitude: W81° 28' 12.2''
  • Latitude: N43° 28' 35.2''
Additional Information
  • Community Features:
  • Lot Features:
Financial
  • Association Fee: 504.78
  • Association Fee Frequency: Monthly
  • Association Fee Includes:
  • Tax Annual Amount: 2904
Powered by REALTOR.ca
Listing updated: 2026-05-16 13:05:29
List Your Property
Mortgage Calculator
Get Pre-Approved
$
$
%
%
years
Monthly Payment (Est.) $
Listing Information
  • List Agent Key: 1680011
  • List Office Key: 50115
  • Modification Timestamp: 2026-04-25T20:25:34Z
  • Originating System Name: Toronto Regional Real Estate Board
  • Status Change Timestamp: 2026-04-25T20:16:08Z
Powered by REALTOR.ca
Listing updated: 2026-05-16 13:05:30
REALTOR®, REALTORS®, and the REALTOR® logo are certification marks that are owned by REALTOR® Canada Inc. and licensed exclusively to The Canadian Real Estate Association (CREA). These certification marks identify real estate professionals who are members of CREA and who must abide by CREA’s By‐Laws, Rules, and the REALTOR® Code. The MLS® trademark and the MLS® logo are owned by CREA and identify the quality of services provided by real estate professionals who are members of CREA.

The information contained on this site is based in whole or in part on information that is provided by members of The Canadian Real Estate Association, who are responsible for its accuracy. CREA reproduces and distributes this information as a service for its members and assumes no responsibility for its accuracy.

Website is operated by a brokerage or salesperson who is a member of The Canadian Real Estate Association.

The listing content on this website is protected by copyright and other laws, and is intended solely for the private, non‐commercial use by individuals. Any other reproduction, distribution or use of the content, in whole or in part, is specifically forbidden. The prohibited uses include commercial use, “screen scraping”, “database scraping”, and any other activity intended to collect, store, reorganize or manipulate data on the pages produced by or displayed on this website.

By continuing to use this website and its services, you agree to these

These forms are provided to ComFree’s Unrepresented Sellers as a part of their Mere Posting ComFree Listing Contract.

I acknowledge I can only access these forms as a ComFree customer under contract.

These forms are provided to ComFree’s Unrepresented Sellers as a part of their Mere Posting ComFree Listing Contract and in partnership with Zubic Law.

I acknowledge I can only access these forms as a ComFree customer under contract.

These forms are provided to ComFree’s Unrepresented Sellers as a part of their Mere Posting ComFree Listing Contract and in partnership with Zubic Law.

I acknowledge I can only access these forms as a ComFree customer under contract.

How It Works

1. Purchase Your Package

2. We Ship Your ‘For Sale’ Sign

3. Book Your VR Tour

4. Complete Listing Input Forms

5. We Make Your Listing Live

6. Get Support 7 Days a Week

7. iSOLD!