Share
$3,880,000
Ontario,Richmond Hill (Jefferson)
For Sale Active
229 HARRIS AVENUE, Richmond Hill (Jefferson), Ontario L4E3M3
  • 1 Acre
Contact Seller
Basic Details
Description

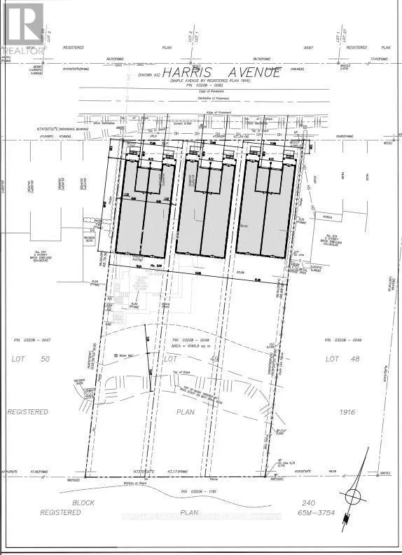
*ATTN BUILDERS AND INVESTORS* ZONING APPROVED, SERVICED SEMI-DETACHED DEVELOPMENT ** The property has aconditionally approved consent application for a 6-unit SEMI-DETACHED. Approval is progressing in the process of satisfying theengineering conditions (final stage). Once conditions are met, you can apply for a building permit. Buyers can move forward knowing theapplication is in an advanced stage, pending final steps. The lots

are being FULLY SERVICED. Each unit has a side entrance to the basement.Units range approximately 2,700 sqft. in size, with long, deep, and back to the ravine. Extremely well located in the affluent & sought-afterJefferson community. A construction project is underway to provide an additional area on the north side of the Site. This premier locationoffers luxury living with convenient access to top-rated schools, parks, shopping, dining, and major transit routes. Mature trees and upscaleresidences surround the serene neighbourhood. There is a 2-story home with well water and septic on the property (id:62650)

Read More
Basic Details
  • Property Type: Residential
  • Listing Type: For Sale
  • Listing ID: N13045164
  • Price: $3,880,000
  • Square Footage: 1 Acre
  • Status: Active
  • Property Sub Type: Vacant Land
  • Office Key: 279420
Address Map
  • Location: CA, Ontario, Richmond Hill (Jefferson), L4E3M3
  • Street: Harris
  • Street Number: 229
  • Street Suffix: Avenue
  • Longitude: W80° 32' 33.4''
  • Latitude: N43° 55' 6''
Additional Information
  • Water Source:
  • Lot Features:
  • Lot Size Dimensions: 1.031
Financial
  • Tax Annual Amount: 9471
Powered by REALTOR.ca
Listing updated: 2026-04-26 16:25:05
List Your Property
Mortgage Calculator
Get Pre-Approved
$
$
%
%
years
Monthly Payment (Est.) $
Listing Information
  • List Agent Key: 1937991
  • List Office Key: 279420
  • Modification Timestamp: 2026-04-25T20:45:35Z
  • Originating System Name: Toronto Regional Real Estate Board
  • Status Change Timestamp: 2026-04-25T20:35:21Z
Powered by REALTOR.ca
Listing updated: 2026-04-26 16:25:06
REALTOR®, REALTORS®, and the REALTOR® logo are certification marks that are owned by REALTOR® Canada Inc. and licensed exclusively to The Canadian Real Estate Association (CREA). These certification marks identify real estate professionals who are members of CREA and who must abide by CREA’s By‐Laws, Rules, and the REALTOR® Code. The MLS® trademark and the MLS® logo are owned by CREA and identify the quality of services provided by real estate professionals who are members of CREA.

The information contained on this site is based in whole or in part on information that is provided by members of The Canadian Real Estate Association, who are responsible for its accuracy. CREA reproduces and distributes this information as a service for its members and assumes no responsibility for its accuracy.

Website is operated by a brokerage or salesperson who is a member of The Canadian Real Estate Association.

The listing content on this website is protected by copyright and other laws, and is intended solely for the private, non‐commercial use by individuals. Any other reproduction, distribution or use of the content, in whole or in part, is specifically forbidden. The prohibited uses include commercial use, “screen scraping”, “database scraping”, and any other activity intended to collect, store, reorganize or manipulate data on the pages produced by or displayed on this website.

By continuing to use this website and its services, you agree to these

These forms are provided to ComFree’s Unrepresented Sellers as a part of their Mere Posting ComFree Listing Contract.

I acknowledge I can only access these forms as a ComFree customer under contract.

These forms are provided to ComFree’s Unrepresented Sellers as a part of their Mere Posting ComFree Listing Contract and in partnership with Zubic Law.

I acknowledge I can only access these forms as a ComFree customer under contract.

These forms are provided to ComFree’s Unrepresented Sellers as a part of their Mere Posting ComFree Listing Contract and in partnership with Zubic Law.

I acknowledge I can only access these forms as a ComFree customer under contract.

How It Works

1. Purchase Your Package

2. We Ship Your ‘For Sale’ Sign

3. Book Your VR Tour

4. Complete Listing Input Forms

5. We Make Your Listing Live

6. Get Support 7 Days a Week

7. iSOLD!