Share
$1,900
Ontario,Brantford
For Sale Active
1212 - 33 ERIE AVE AVENUE, Brantford, Ontario N3S2E7
  • 2
  • 1
  • 500 - 599Square Feet
Contact Seller
Basic Details
Description

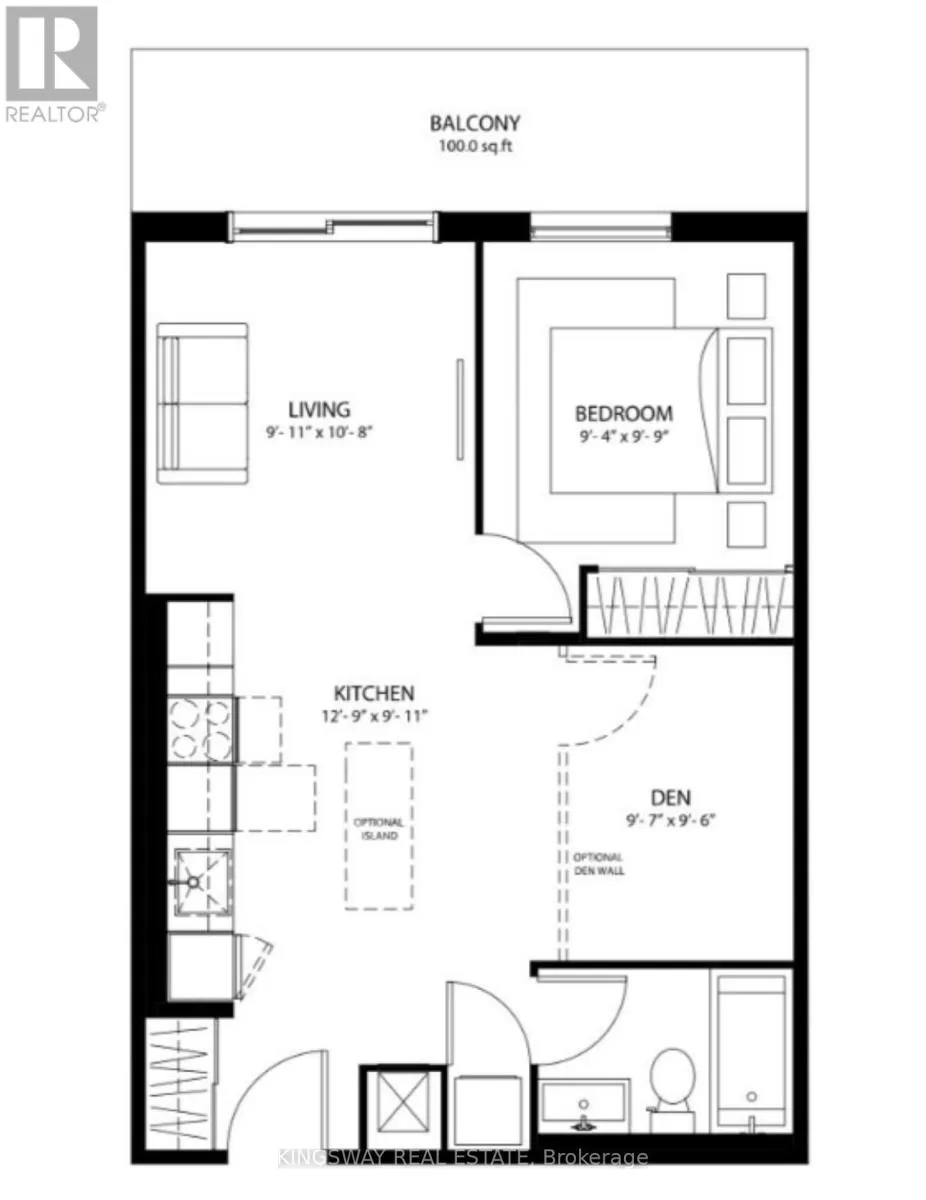
Experience elevated urban living in this spacious 1 bedroom suite + den within the highly anticipated Phase 2 of the Grandbell Condos, a landmark master-planned community revitalizing downtown Brantford. This floor plan offers in space and functionality, featuring 9′ ceilings. Residents will enjoy premium boutique amenities, including a 24-hour concierge, fitness centre, co-working space, and an expansive rooftop terrace with

BBQs and a splash pad. Perfectly situated for both nature and lifestyle, you are steps from the Grand River trails and a vibrant downtown core with a Walk Score of 85. With its prime location just minutes from University, College, and easy transit links via the 403 and GO Transit, this unit offers exceptional investment potential. (id:62650)

Read More
Basic Details
  • Property Type: Residential
  • Listing Type: For Sale
  • Listing ID: X13046102
  • Price: $1,900
  • Bedrooms: 2
  • Bathrooms: 1
  • View: River view
  • Square Footage: 500 - 599 Sqft
  • Status: Active
  • Property Attached Yn: 1
  • Property Sub Type: Single Family
  • Office Key: 93711
Features & Appliances
Features
  • Heating System: Electric, Forced air
  • Cooling System: Central air conditioning
  • Basement: None
  • Parking: Garage, Attached Garage
  • Exterior Features: Brick
Address Map
  • Location: CA, Ontario, Brantford, N3S2E7
  • Street: Erie Ave
  • Street Number: 33
  • Street Suffix: Avenue
  • Longitude: W81° 44' 18.3''
  • Latitude: N43° 8' 2.3''
Additional Information
  • Community Features:
  • Lot Features:
Financial
  • Association Fee Frequency: Monthly
Powered by REALTOR.ca
Listing updated: 2026-04-26 19:03:08
List Your Property
Mortgage Calculator
Get Pre-Approved
$
$
%
%
years
Monthly Payment (Est.) $
Listing Information
  • List Agent Key: 1890863
  • List Office Key: 93711
  • Modification Timestamp: 2026-04-26T21:50:12Z
  • Originating System Name: Toronto Regional Real Estate Board
  • Status Change Timestamp: 2026-04-26T21:43:46Z
Powered by REALTOR.ca
Listing updated: 2026-04-26 19:03:09
REALTOR®, REALTORS®, and the REALTOR® logo are certification marks that are owned by REALTOR® Canada Inc. and licensed exclusively to The Canadian Real Estate Association (CREA). These certification marks identify real estate professionals who are members of CREA and who must abide by CREA’s By‐Laws, Rules, and the REALTOR® Code. The MLS® trademark and the MLS® logo are owned by CREA and identify the quality of services provided by real estate professionals who are members of CREA.

The information contained on this site is based in whole or in part on information that is provided by members of The Canadian Real Estate Association, who are responsible for its accuracy. CREA reproduces and distributes this information as a service for its members and assumes no responsibility for its accuracy.

Website is operated by a brokerage or salesperson who is a member of The Canadian Real Estate Association.

The listing content on this website is protected by copyright and other laws, and is intended solely for the private, non‐commercial use by individuals. Any other reproduction, distribution or use of the content, in whole or in part, is specifically forbidden. The prohibited uses include commercial use, “screen scraping”, “database scraping”, and any other activity intended to collect, store, reorganize or manipulate data on the pages produced by or displayed on this website.

By continuing to use this website and its services, you agree to these

These forms are provided to ComFree’s Unrepresented Sellers as a part of their Mere Posting ComFree Listing Contract.

I acknowledge I can only access these forms as a ComFree customer under contract.

These forms are provided to ComFree’s Unrepresented Sellers as a part of their Mere Posting ComFree Listing Contract and in partnership with Zubic Law.

I acknowledge I can only access these forms as a ComFree customer under contract.

These forms are provided to ComFree’s Unrepresented Sellers as a part of their Mere Posting ComFree Listing Contract and in partnership with Zubic Law.

I acknowledge I can only access these forms as a ComFree customer under contract.

How It Works

1. Purchase Your Package

2. We Ship Your ‘For Sale’ Sign

3. Book Your VR Tour

4. Complete Listing Input Forms

5. We Make Your Listing Live

6. Get Support 7 Days a Week

7. iSOLD!