Share
$3,000
Ontario,Toronto (South Riverdale)
For Sale Active
1 - 92 CAROLINE AVENUE, Toronto (South Riverdale), Ontario M4M2X7
  • 3
  • 1
  • 1100 - 1500Square Feet
Contact Seller
Basic Details
Description

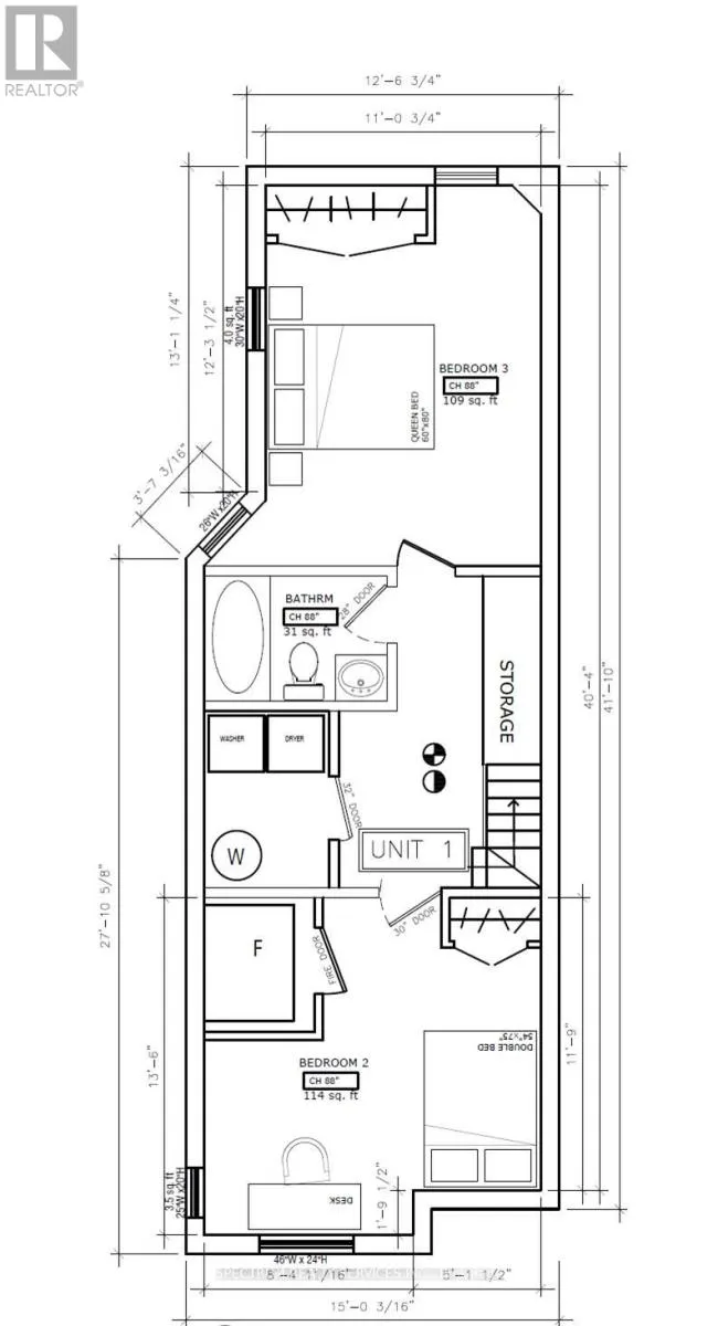
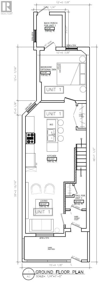
Welcome to this beautifully maintained Victorian home in the heart of Leslieville, situated on one of the most desirable, quiet, and safe streets in the neighborhood. This spacious 1350sf unit, renovated by a renowned designer featured on HGTV, occupies the main floor and a finished basement, offering a perfect blend of character, style, and modern convenience. This home is shared

with one other unit above the main floor. Both units have a private entrance through a shared front porch. The front porch provides space for bike storage, while the shared backyard is primarily accessible from this unit. One laneway parking spot is included for added convenience. Located just steps from Queen St. streetcar, coffee shops, restaurants, and grocery stores, this home offers unbeatable access to the best of Leslieville.***Tenant is responsible for hydro. Landlord pays gas and water. *** (id:62650)

Read More
Basic Details
  • Property Type: Residential
  • Listing Type: For Sale
  • Listing ID: E13058724
  • Price: $3,000
  • Bedrooms: 3
  • Bathrooms: 1
  • Square Footage: 1100 - 1500 Sqft
  • Status: Active
  • Property Attached Yn: 1
  • Property Sub Type: Single Family
  • Office Key: 50479
Features & Appliances
Features
  • Heating System: Forced air, Natural gas
  • Cooling System: Window air conditioner
  • Basement: Finished, N/A
  • Parking: No Garage
  • Exterior Features: Brick
  • Flooring: Hardwood
  • Sewer: Sanitary sewer
Address Map
  • Location: CA, Ontario, Toronto (South Riverdale), M4M2X7
  • Street: Caroline
  • Street Number: 92
  • Street Suffix: Avenue
  • Longitude: W80° 39' 53.1''
  • Latitude: N43° 39' 40.3''
Additional Information
  • Water Source:
  • Foundation Details:
  • Lot Features:
  • Lot Size Dimensions: 16 x 103.5 FT
  • Stories: 2.5
Powered by REALTOR.ca
Listing updated: 2026-04-29 21:07:38
List Your Property
Mortgage Calculator
Get Pre-Approved
$
$
%
%
years
Monthly Payment (Est.) $
Listing Information
  • List Agent Key: 2197616
  • List Office Key: 50479
  • Modification Timestamp: 2026-04-29T18:15:43Z
  • Originating System Name: Toronto Regional Real Estate Board
  • Status Change Timestamp: 2026-04-29T18:05:48Z
Powered by REALTOR.ca
Listing updated: 2026-04-29 21:07:39
REALTOR®, REALTORS®, and the REALTOR® logo are certification marks that are owned by REALTOR® Canada Inc. and licensed exclusively to The Canadian Real Estate Association (CREA). These certification marks identify real estate professionals who are members of CREA and who must abide by CREA’s By‐Laws, Rules, and the REALTOR® Code. The MLS® trademark and the MLS® logo are owned by CREA and identify the quality of services provided by real estate professionals who are members of CREA.

The information contained on this site is based in whole or in part on information that is provided by members of The Canadian Real Estate Association, who are responsible for its accuracy. CREA reproduces and distributes this information as a service for its members and assumes no responsibility for its accuracy.

Website is operated by a brokerage or salesperson who is a member of The Canadian Real Estate Association.

The listing content on this website is protected by copyright and other laws, and is intended solely for the private, non‐commercial use by individuals. Any other reproduction, distribution or use of the content, in whole or in part, is specifically forbidden. The prohibited uses include commercial use, “screen scraping”, “database scraping”, and any other activity intended to collect, store, reorganize or manipulate data on the pages produced by or displayed on this website.

By continuing to use this website and its services, you agree to these

These forms are provided to ComFree’s Unrepresented Sellers as a part of their Mere Posting ComFree Listing Contract.

I acknowledge I can only access these forms as a ComFree customer under contract.

These forms are provided to ComFree’s Unrepresented Sellers as a part of their Mere Posting ComFree Listing Contract and in partnership with Zubic Law.

I acknowledge I can only access these forms as a ComFree customer under contract.

These forms are provided to ComFree’s Unrepresented Sellers as a part of their Mere Posting ComFree Listing Contract and in partnership with Zubic Law.

I acknowledge I can only access these forms as a ComFree customer under contract.

How It Works

1. Purchase Your Package

2. We Ship Your ‘For Sale’ Sign

3. Book Your VR Tour

4. Complete Listing Input Forms

5. We Make Your Listing Live

6. Get Support 7 Days a Week

7. iSOLD!