Share
$965,000
British Columbia,Kamloops
For Sale Active
1165 13th Street, Kamloops, British Columbia V2B8K4
  • 7
  • 4
  • 3,666 Sqft
Contact Seller
Basic Details
Description

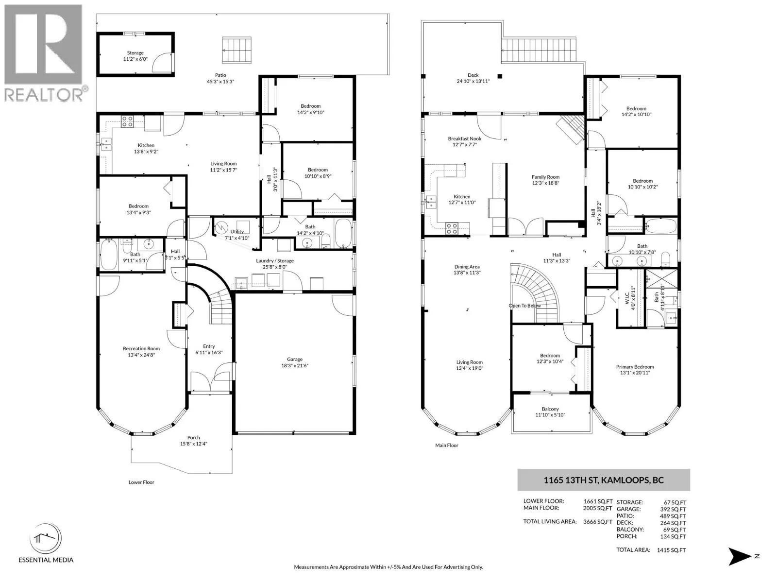
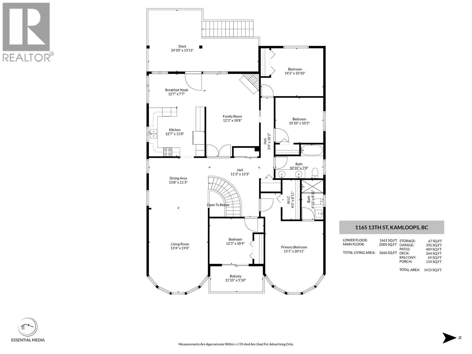
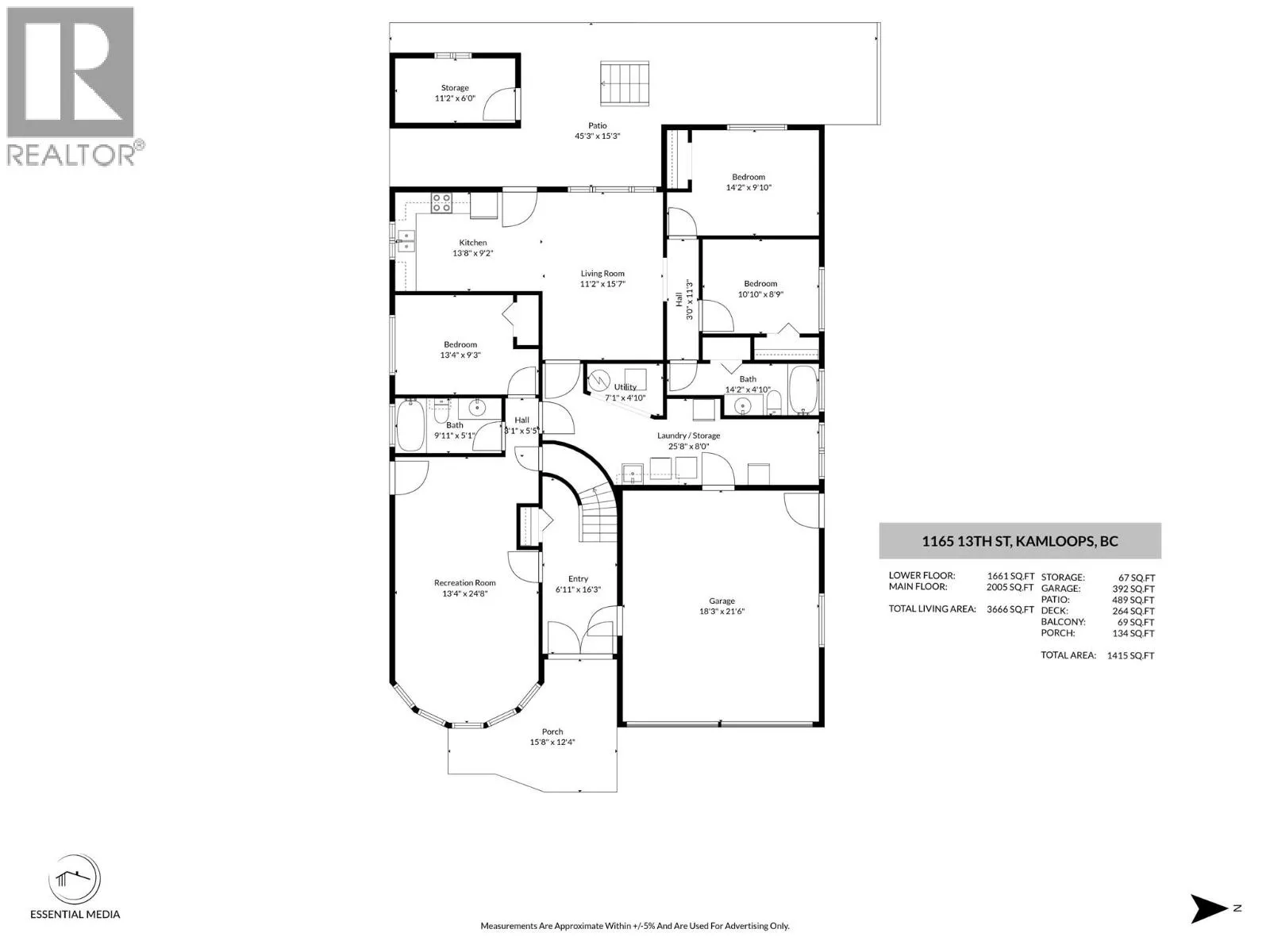
Location is everything—and this exceptional 3,600+ sq. ft. basement-entry home checks all the boxes. With 7 bedrooms and 4 bathrooms, this bright and spacious residence offers incredible flexibility for growing families, multi-generational living, or savvy investors. The main floor is designed for both comfort and entertaining, featuring a generous primary suite with a convenient level-entry ensuite shower, a sun-filled living

room, and a welcoming family room with a cozy gas fireplace. The formal dining area and well-equipped kitchen with a breakfast nook make hosting effortless. Downstairs adds even more value, with a large recreation room (complete with a second gas fireplace), an additional bedroom, a full bathroom, and extensive utility, laundry, and storage space. Plus, the bright 2-bedroom, 2-bathroom daylight in-law suite with its own private entrance offers excellent income potential or the perfect setup for extended family. Enjoy easy-care living with durable laminate and tile flooring throughout, complemented by select carpeted areas for added comfort. Step outside to a flat, fully fenced backyard featuring raised garden beds, mature fruit trees, and two storage sheds—ideal for relaxing, gardening, or family time. A low-maintenance tile roof adds lasting peace of mind. Move-in ready and packed with potential, this home is perfectly located within walking distance to schools and transit, and just minutes from shopping and everyday amenities. Opportunities like this don’t last—book your showing today. (id:62650)

Read More
Basic Details
  • Property Type: Residential
  • Listing Type: For Sale
  • Listing ID: 10385418
  • Price: $965,000
  • Bedrooms: 7
  • Bathrooms: 4
  • View: Mountain view
  • Square Footage: 3,666 Sqft
  • Year Built: 1990
  • Status: Active
  • Property Sub Type: Single Family
  • Office Key: 54736
Features & Appliances
Features
  • Heating System: Forced air
  • Cooling System: Central air conditioning
  • Basement: Full
  • Fireplace: Gas, Unknown
  • Parking: Additional Parking, Attached Garage
  • Exterior Features: Brick, Vinyl siding
  • Flooring: Laminate, Tile, Carpeted
  • Sewer: Municipal sewage system
  • Fireplaces Total: 2
Address Map
  • Location: CA, British Columbia, Kamloops, V2B8K4
  • Street: 13th
  • Street Number: 1165
  • Street Suffix: Street
  • Longitude: W121° 37' 29''
  • Latitude: N50° 42' 23.1''
Additional Information
  • Water Source:
  • Lot Features:
  • Lot Size Dimensions: 0.15
  • Stories: 2.0
Financial
  • Tax Annual Amount: 5815.62
Powered by REALTOR.ca
Listing updated: 2026-04-30 00:02:32
List Your Property
Mortgage Calculator
Get Pre-Approved
$
$
%
%
years
Monthly Payment (Est.) $
Listing Information
  • List Agent Key: 1527890
  • List Office Key: 54736
  • Modification Timestamp: 2026-04-30T01:35:36Z
  • Originating System Name: Association of Interior REALTORS®
  • Status Change Timestamp: 2026-04-30T01:29:17Z
Powered by REALTOR.ca
Listing updated: 2026-04-30 00:02:33
REALTOR®, REALTORS®, and the REALTOR® logo are certification marks that are owned by REALTOR® Canada Inc. and licensed exclusively to The Canadian Real Estate Association (CREA). These certification marks identify real estate professionals who are members of CREA and who must abide by CREA’s By‐Laws, Rules, and the REALTOR® Code. The MLS® trademark and the MLS® logo are owned by CREA and identify the quality of services provided by real estate professionals who are members of CREA.

The information contained on this site is based in whole or in part on information that is provided by members of The Canadian Real Estate Association, who are responsible for its accuracy. CREA reproduces and distributes this information as a service for its members and assumes no responsibility for its accuracy.

Website is operated by a brokerage or salesperson who is a member of The Canadian Real Estate Association.

The listing content on this website is protected by copyright and other laws, and is intended solely for the private, non‐commercial use by individuals. Any other reproduction, distribution or use of the content, in whole or in part, is specifically forbidden. The prohibited uses include commercial use, “screen scraping”, “database scraping”, and any other activity intended to collect, store, reorganize or manipulate data on the pages produced by or displayed on this website.

By continuing to use this website and its services, you agree to these

These forms are provided to ComFree’s Unrepresented Sellers as a part of their Mere Posting ComFree Listing Contract.

I acknowledge I can only access these forms as a ComFree customer under contract.

These forms are provided to ComFree’s Unrepresented Sellers as a part of their Mere Posting ComFree Listing Contract and in partnership with Zubic Law.

I acknowledge I can only access these forms as a ComFree customer under contract.

These forms are provided to ComFree’s Unrepresented Sellers as a part of their Mere Posting ComFree Listing Contract and in partnership with Zubic Law.

I acknowledge I can only access these forms as a ComFree customer under contract.

How It Works

1. Purchase Your Package

2. We Ship Your ‘For Sale’ Sign

3. Book Your VR Tour

4. Complete Listing Input Forms

5. We Make Your Listing Live

6. Get Support 7 Days a Week

7. iSOLD!