Share
$789,900
British Columbia,Invermere
For Sale Active
1303 Orchard Lane, Invermere, British Columbia V0A1K0
  • 2
  • 2
  • 1,850 Sqft
Contact Seller
Basic Details
Description

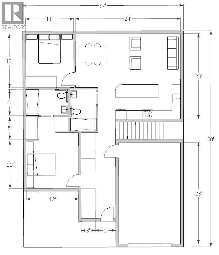
Welcome to the Orchard, where we embrace our unique, high-standard units, thoughtfully constructed just for you! Say goodbye to fees and hello to low-maintenance living, featuring robust 2×8 walls insulated to R28 and R56 in the ceiling, complemented by energy-efficient, triple-glazed windows. Imagine a home that is not only airtight but also maintains net-zero energy consumption, thanks to the addition

of solar panels. Designed for lasting comfort, our homes boast wide hallways and 36″” doorways, ensuring safety and accessibility. This home offers 1040 square feet plus a attached garage of 350 square feet the grand main floor encompasses everything you need, including a spacious master suite with an ensuite bathroom, laundry, kitchen, and bathroom, all just steps away. Stay cozy year-round with a cold climate heat pump system, while the garage provides ample space for vehicles and recreational toys. Enjoy outdoor living in your private yard, complete with two sitting areas and a fence for added privacy. Best of all, every appliance is included. Quality matters. (id:62650)

Read More
Basic Details
  • Property Type: Residential
  • Listing Type: For Sale
  • Listing ID: 10353194
  • Price: $789,900
  • Bedrooms: 2
  • Bathrooms: 2
  • View: Mountain view
  • Square Footage: 1,850 Sqft
  • Year Built: 2026
  • Status: Active
  • Property Attached Yn: 1
  • Property Sub Type: Single Family
  • Roof:
  • Office Key: 98327
Features & Appliances
Features
  • Heating System: Heat Pump, Baseboard heaters
  • Cooling System: Central air conditioning
  • Parking: Attached Garage
  • Architectural Style: Contemporary
  • Exterior Features: Aluminum
  • Sewer: Municipal sewage system
Address Map
  • Location: CA, British Columbia, Invermere, V0A1K0
  • Street: Orchard
  • Street Number: 1303
  • Street Suffix: Lane
  • Longitude: W117° 57' 41.7''
  • Latitude: N50° 30' 1.5''
Additional Information
  • Water Source:
  • Community Features:
  • Foundation Details:
  • Lot Size Dimensions: 0.06
  • Stories: 1.0
Financial
  • Tax Annual Amount: 1012
Powered by REALTOR.ca
Listing updated: 2026-05-18 00:33:59
List Your Property
Mortgage Calculator
Get Pre-Approved
$
$
%
%
years
Monthly Payment (Est.) $
Listing Information
  • List Agent Key: 1606686
  • List Office Key: 98327
  • Modification Timestamp: 2026-05-04T20:30:54Z
  • Originating System Name: Association of Interior REALTORS®
  • Status Change Timestamp: 2026-05-04T20:21:44Z
Powered by REALTOR.ca
Listing updated: 2026-05-18 00:33:59
REALTOR®, REALTORS®, and the REALTOR® logo are certification marks that are owned by REALTOR® Canada Inc. and licensed exclusively to The Canadian Real Estate Association (CREA). These certification marks identify real estate professionals who are members of CREA and who must abide by CREA’s By‐Laws, Rules, and the REALTOR® Code. The MLS® trademark and the MLS® logo are owned by CREA and identify the quality of services provided by real estate professionals who are members of CREA.

The information contained on this site is based in whole or in part on information that is provided by members of The Canadian Real Estate Association, who are responsible for its accuracy. CREA reproduces and distributes this information as a service for its members and assumes no responsibility for its accuracy.

Website is operated by a brokerage or salesperson who is a member of The Canadian Real Estate Association.

The listing content on this website is protected by copyright and other laws, and is intended solely for the private, non‐commercial use by individuals. Any other reproduction, distribution or use of the content, in whole or in part, is specifically forbidden. The prohibited uses include commercial use, “screen scraping”, “database scraping”, and any other activity intended to collect, store, reorganize or manipulate data on the pages produced by or displayed on this website.

By continuing to use this website and its services, you agree to these

These forms are provided to ComFree’s Unrepresented Sellers as a part of their Mere Posting ComFree Listing Contract.

I acknowledge I can only access these forms as a ComFree customer under contract.

These forms are provided to ComFree’s Unrepresented Sellers as a part of their Mere Posting ComFree Listing Contract and in partnership with Zubic Law.

I acknowledge I can only access these forms as a ComFree customer under contract.

These forms are provided to ComFree’s Unrepresented Sellers as a part of their Mere Posting ComFree Listing Contract and in partnership with Zubic Law.

I acknowledge I can only access these forms as a ComFree customer under contract.

How It Works

1. Purchase Your Package

2. We Ship Your ‘For Sale’ Sign

3. Book Your VR Tour

4. Complete Listing Input Forms

5. We Make Your Listing Live

6. Get Support 7 Days a Week

7. iSOLD!