Share
$799,999
Ontario,LaSalle
For Sale Active
2646 TODD LANE, LaSalle, Ontario N9H1K5
  • 5
  • 3
Contact Seller
Basic Details
Description

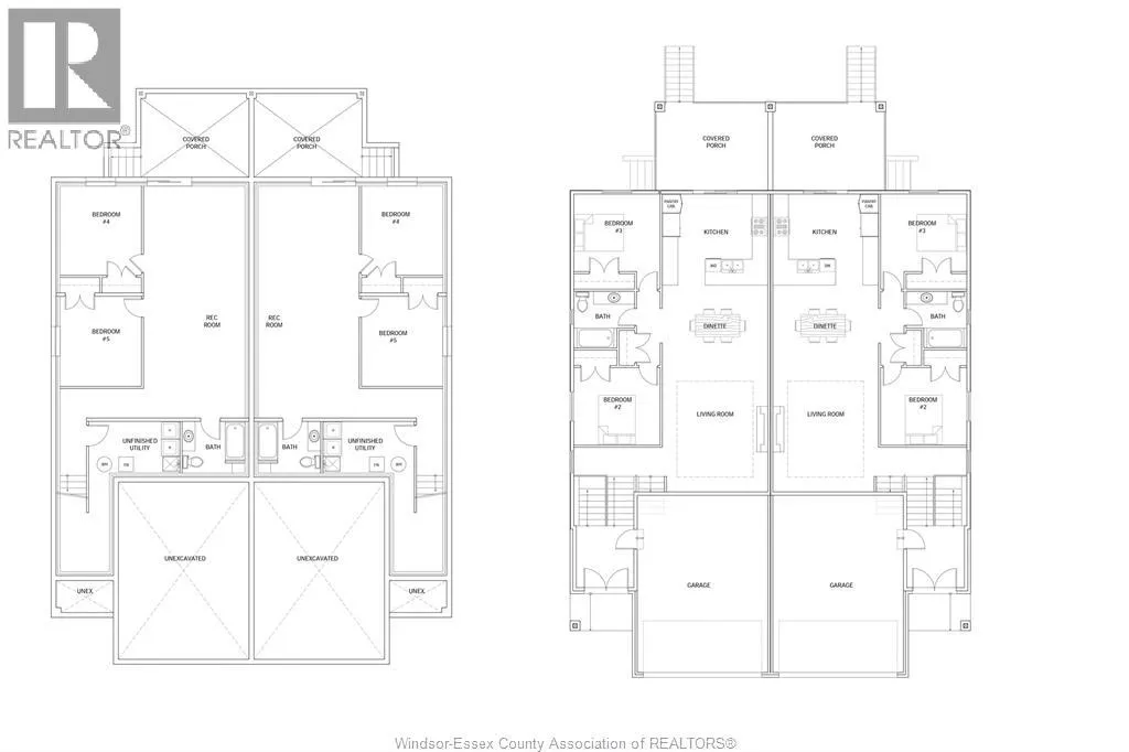
TO BE BUILT BY CHEHAB CUSTOM HOMES INC. Welcome to 2646 Todd Lane — a stunning 1,791 sq ft semi-detached home in one of LaSalle’s most desirable locations, backing onto an ERCA-protected conservation area for ultimate privacy and natural beauty. Designed with 9-ft ceilings on the basement, main floor, and second-level bonus room featuring elegant boxed ceiling details, this home

blends modern design with spacious comfort. Offering 3 bedrooms and 2 bathrooms, including a primary suite with ensuite in the bonus room, plus an open-concept kitchen with granite countertops, ceramic tile in the kitchen and foyer, and hardwood flooring throughout the living areas and bedrooms. Finished with a timeless brick, stucco & stone exterior, this home sits on a 32 x 230.6 ft lot, just minutes to St. Clair College, the highway, shopping, and parks. Quality craftsmanship, contemporary style, and natural serenity — built by Chehab Custom Homes Inc. (id:62650)

Read More
Basic Details
  • Property Type: Residential
  • Listing Type: For Sale
  • Listing ID: 25027030
  • Price: $799,999
  • Bedrooms: 5
  • Bathrooms: 3
  • Status: Active
  • Property Attached Yn: 1
  • Property Sub Type: Single Family
  • Office Key: 48685
Features & Appliances
Features
  • Heating System: Natural gas, Furnace
  • Cooling System: Central air conditioning
  • Parking: Garage
  • Architectural Style: Raised Ranch w/ Bonus Room
  • Exterior Features: Brick, Stone, Concrete/Stucco
  • Flooring: Hardwood, Ceramic/Porcelain
Address Map
  • Location: CA, Ontario, LaSalle, N9H1K5
  • Street: TODD
  • Street Number: 2646
  • Street Suffix: Lane
  • Longitude: W84° 57' 34''
  • Latitude: N42° 15' 3.5''
Additional Information
  • Foundation Details:
  • Lot Features:
  • Lot Size Dimensions: 32 X 230.6
Powered by REALTOR.ca
Listing updated: 2025-10-28 06:55:46
List Your Property
Mortgage Calculator
Get Pre-Approved
$
$
%
%
years
Monthly Payment (Est.) $
Similar Properties
Listing Information
  • List Agent Key: 2246684
  • List Office Key: 48685
  • Modification Timestamp: 2025-10-24T17:35:53Z
  • Originating System Name: Windsor-Essex County Association of REALTORS®
  • Status Change Timestamp: 2025-10-24T17:16:54Z
Powered by REALTOR.ca
Listing updated: 2025-10-28 06:55:46

These forms are provided to ComFree’s Unrepresented Sellers as a part of their Mere Posting ComFree Listing Contract.

I acknowledge I can only access these forms as a ComFree customer under contract.

These forms are provided to ComFree’s Unrepresented Sellers as a part of their Mere Posting ComFree Listing Contract and in partnership with Zubic Law.

I acknowledge I can only access these forms as a ComFree customer under contract.

These forms are provided to ComFree’s Unrepresented Sellers as a part of their Mere Posting ComFree Listing Contract and in partnership with Zubic Law.

I acknowledge I can only access these forms as a ComFree customer under contract.

How It Works

1. Purchase Your Package

2. We Ship Your ‘For Sale’ Sign

3. Book Your VR Tour

4. Complete Listing Input Forms

5. We Make Your Listing Live

6. Get Support 7 Days a Week

7. iSOLD!