Share
$1,190,000
Ontario,Kitchener
For Sale Active
1154 QUEENS Boulevard, Kitchener, Ontario N2M1C2
  • 4
  • 3
  • 2,934 Sqft
Contact Seller
Basic Details
Description

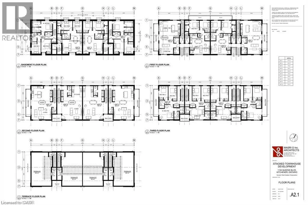
Attention all developers. Unique opportunity for this 65 ft x 280 ft lot.The property is Site Plan approved for 10 Unit Stack Townhomes with 15 Parking spots. Central location close to Downtown Kitchener ,St. Mary’s hospital, shopping, schools and many other amenties. Included in the price: Architectural Drawings, Structural Framing Drawings, Landscape drawings, Topographic Survey, Boundary Survey, Servicing Drawings, Electrical

Drawings, Mechanical Drawings, Geotechnical Report, Environmental study Phase 1,Landscape Plan, Legal Survey and Topographic Survey. (id:62650)

Read More
Basic Details
  • Property Type: Residential
  • Listing Type: For Sale
  • Listing ID: 40782014
  • Price: $1,190,000
  • Bedrooms: 4
  • Bathrooms: 3
  • Square Footage: 2,934 Sqft
  • Status: Active
  • Property Sub Type: Single Family
  • Office Key: 76840
Features & Appliances
Features
  • Heating System: Forced air, Natural gas
  • Cooling System: Central air conditioning
  • Basement: Finished, Full
  • Parking: Detached Garage
  • Exterior Features: Brick, Metal
  • Sewer: Municipal sewage system
Address Map
  • Location: CA, Ontario, Kitchener, 325 - Forest Hill, N2M1C2
  • Street: QUEENS
  • Street Number: 1154
  • Street Suffix: Boulevard
  • Longitude: W81° 29' 33.3''
  • Latitude: N43° 26' 5.3''
Additional Information
  • Water Source:
  • Foundation Details:
  • Lot Features:
  • Stories: 1.5
Financial
  • Tax Annual Amount: 4856.83
Powered by REALTOR.ca
Listing updated: 2025-10-25 20:13:05
List Your Property
Mortgage Calculator
Get Pre-Approved
$
$
%
%
years
Monthly Payment (Est.) $
Similar Properties
Listing Information
  • List Agent Key: 1974421
  • List Office Key: 76840
  • Modification Timestamp: 2025-10-24T17:50:42Z
  • Originating System Name: Cornerstone Association of REALTORS®
  • Status Change Timestamp: 2025-10-24T17:39:02Z
Powered by REALTOR.ca
Listing updated: 2025-10-25 20:13:05

These forms are provided to ComFree’s Unrepresented Sellers as a part of their Mere Posting ComFree Listing Contract.

I acknowledge I can only access these forms as a ComFree customer under contract.

These forms are provided to ComFree’s Unrepresented Sellers as a part of their Mere Posting ComFree Listing Contract and in partnership with Zubic Law.

I acknowledge I can only access these forms as a ComFree customer under contract.

These forms are provided to ComFree’s Unrepresented Sellers as a part of their Mere Posting ComFree Listing Contract and in partnership with Zubic Law.

I acknowledge I can only access these forms as a ComFree customer under contract.

How It Works

1. Purchase Your Package

2. We Ship Your ‘For Sale’ Sign

3. Book Your VR Tour

4. Complete Listing Input Forms

5. We Make Your Listing Live

6. Get Support 7 Days a Week

7. iSOLD!