Share
$359,998
Alberta,Edmonton
For Sale Active
5150 RIVER'S EDGE WY NW, Edmonton, Alberta T6M3B5
  • 2
  • 3
  • 1,112 Sqft
Contact Seller
Basic Details
Description

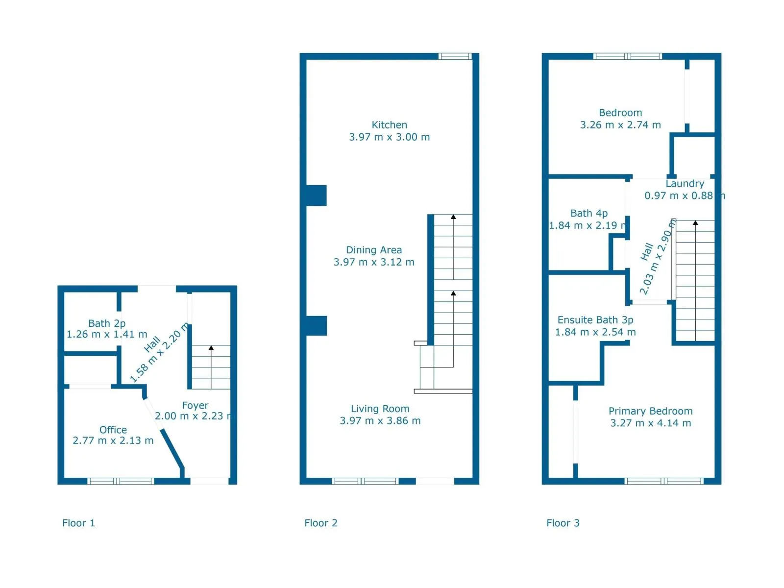
NO CONDO FEES and AMAZING VALUE! You read that right. Welcome to this brand new townhouse unit, the Gabriel, built by StreetSide Developments. Located in the newest premier west end community of River’s Edge, this home is almost 1200 square feet and comes with front yard landscaping and a single oversized attached garage. A perfect opportunity for a young family

or downsizers to get into a new home! Your main floor is complete with upgrade luxury vinyl plank flooring throughout the great room and the kitchen. The main entrance/ main floor has a large sized foyer with a 2 piece bathroom and an office / bedroom. Highlighted in your new kitchen are upgraded cabinets, upgraded counter tops and a tile back splash. The upper level has 2 bedrooms and 2 full bathrooms. *** Home is under construction and will be complete this week and the photos used are from the same model and colors may vary**** (id:62650)

Read More
Basic Details
  • Property Type: Residential
  • Listing Type: For Sale
  • Listing ID: E4463488
  • Price: $359,998
  • Bedrooms: 2
  • Bathrooms: 3
  • Half Bathrooms: 1
  • Square Footage: 1,112 Sqft
  • Year Built: 2025
  • Status: Active
  • Property Attached Yn: 1
  • Property Sub Type: Single Family
  • Office Key: 67147
Features & Appliances
Features
  • Heating System: Forced air
  • Basement: None
  • Fence: Fence
  • Parking: Attached Garage, Oversize
Address Map
  • Location: CA, Alberta, Edmonton, T6M3B5
  • Longitude: W114° 20' 29.6''
  • Latitude: N53° 27' 8.5''
Additional Information
  • Community Features:
  • Lot Features:
  • Lot Size Dimensions: 106.73
  • Stories: 2.0
Powered by REALTOR.ca
Listing updated: 2025-10-26 04:52:39
List Your Property
Mortgage Calculator
Get Pre-Approved
$
$
%
%
years
Monthly Payment (Est.) $
Similar Properties
Listing Information
  • List Agent Key: 1478316
  • List Office Key: 67147
  • Modification Timestamp: 2025-10-25T01:55:59Z
  • Originating System Name: REALTORS® Association of Edmonton
  • Status Change Timestamp: 2025-10-25T01:55:03Z
Powered by REALTOR.ca
Listing updated: 2025-10-26 04:52:39

These forms are provided to ComFree’s Unrepresented Sellers as a part of their Mere Posting ComFree Listing Contract.

I acknowledge I can only access these forms as a ComFree customer under contract.

These forms are provided to ComFree’s Unrepresented Sellers as a part of their Mere Posting ComFree Listing Contract and in partnership with Zubic Law.

I acknowledge I can only access these forms as a ComFree customer under contract.

These forms are provided to ComFree’s Unrepresented Sellers as a part of their Mere Posting ComFree Listing Contract and in partnership with Zubic Law.

I acknowledge I can only access these forms as a ComFree customer under contract.

How It Works

1. Purchase Your Package

2. We Ship Your ‘For Sale’ Sign

3. Book Your VR Tour

4. Complete Listing Input Forms

5. We Make Your Listing Live

6. Get Support 7 Days a Week

7. iSOLD!