Share
$1,599,980
British Columbia,Saanich
For Sale Active
1204 Knockan Pl, Saanich, British Columbia V8Z7L5
  • 6
  • 3
  • 3,115 Sqft
Basic Details
Description

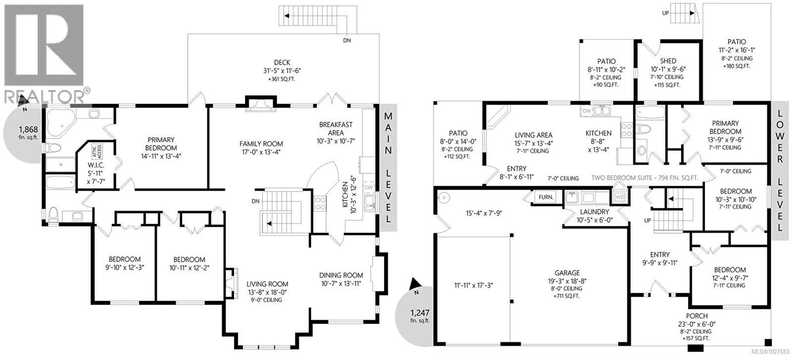
Welcome to the private and sought-after Knockan Hill community! This beautifully maintained 6-bedroom, 3-bathroom home offers a rare blend of space, elegance, and versatility, perfect for families or investors. The main home features a triple-car garage with tons of parking and high-end finishings throughout. On the lower level, you’ll find a spacious entry, a versatile bedroom/office, and a large laundry

room. Upstairs, light pours into the formal family room with a cozy gas fireplace and south-facing windows. A separate dining room also boasts south facing windows and lots of space. Around the corner you’ll find a second inviting living room with another gas fireplace, and an eating nook seamlessly connected to the chef’s kitchen—complete with a gas stove, wood cabinetry, abundant storage, peninsula seating, and access to a large sunny deck. The upper floor also offers two generous sunny bedrooms, a full bath, and a luxurious primary suite with walk-in closet and spa-inspired ensuite with soaker tub. The 2-bedroom in-law suite (almost 800 sq.ft.) with private entry provides excellent income potential or space for extended family. Outdoors, enjoy a huge, private backyard with garden plots, mature hedges, and plenty of room for entertaining or relaxing. This home truly has its all-space, privacy, quality, and location! (id:62650)

Read More
Basic Details
  • Property Type: Residential
  • Listing Type: For Sale
  • Listing ID: 1027683
  • Price: $1,599,980
  • Bedrooms: 6
  • Bathrooms: 3
  • View: Mountain view,Valley view
  • Square Footage: 3,115 Sqft
  • Year Built: 2003
  • Status: Active
  • Property Sub Type: Single Family
  • Office Key: 53064
Features & Appliances
Features
  • Heating System: Heat Pump, Electric, Natural gas, Baseboard heaters
  • Cooling System: Air Conditioned
  • Fireplaces Total: 2
Address Map
  • Location: CA, British Columbia, Saanich, V8Z7L5
  • Street: Knockan
  • Street Number: 1204
  • Street Suffix: Place
  • Longitude: W124° 35' 8.4''
  • Latitude: N48° 28' 18.7''
  • Zoning: Residential
Additional Information
  • Lot Features:
  • Lot Size Dimensions: 8119
Financial
  • Tax Annual Amount: 7461.79
Powered by REALTOR.ca
Listing updated: 2026-04-25 05:08:38
List Your Property
Mortgage Calculator
Get Pre-Approved
$
$
%
%
years
Monthly Payment (Est.) $
Listing Information
  • List Agent Key: 2038044
  • List Office Key: 53064
  • Modification Timestamp: 2026-04-20T16:11:07Z
  • Originating System Name: Victoria Real Estate Board
  • Status Change Timestamp: 2026-04-20T16:01:40Z
Powered by REALTOR.ca
Listing updated: 2026-04-25 05:08:39
REALTOR®, REALTORS®, and the REALTOR® logo are certification marks that are owned by REALTOR® Canada Inc. and licensed exclusively to The Canadian Real Estate Association (CREA). These certification marks identify real estate professionals who are members of CREA and who must abide by CREA’s By‐Laws, Rules, and the REALTOR® Code. The MLS® trademark and the MLS® logo are owned by CREA and identify the quality of services provided by real estate professionals who are members of CREA.

The information contained on this site is based in whole or in part on information that is provided by members of The Canadian Real Estate Association, who are responsible for its accuracy. CREA reproduces and distributes this information as a service for its members and assumes no responsibility for its accuracy.

Website is operated by a brokerage or salesperson who is a member of The Canadian Real Estate Association.

The listing content on this website is protected by copyright and other laws, and is intended solely for the private, non‐commercial use by individuals. Any other reproduction, distribution or use of the content, in whole or in part, is specifically forbidden. The prohibited uses include commercial use, “screen scraping”, “database scraping”, and any other activity intended to collect, store, reorganize or manipulate data on the pages produced by or displayed on this website.

By continuing to use this website and its services, you agree to these

These forms are provided to ComFree’s Unrepresented Sellers as a part of their Mere Posting ComFree Listing Contract.

I acknowledge I can only access these forms as a ComFree customer under contract.

These forms are provided to ComFree’s Unrepresented Sellers as a part of their Mere Posting ComFree Listing Contract and in partnership with Zubic Law.

I acknowledge I can only access these forms as a ComFree customer under contract.

These forms are provided to ComFree’s Unrepresented Sellers as a part of their Mere Posting ComFree Listing Contract and in partnership with Zubic Law.

I acknowledge I can only access these forms as a ComFree customer under contract.

How It Works

1. Purchase Your Package

2. We Ship Your ‘For Sale’ Sign

3. Book Your VR Tour

4. Complete Listing Input Forms

5. We Make Your Listing Live

6. Get Support 7 Days a Week

7. iSOLD!