Share
$710,600
Ontario,London South (South W)
For Sale Active
4334 LISMER LANE, London South (South W), Ontario N6L0E2
  • 3
  • 3
  • 1500 - 2000Square Feet
Basic Details
Description

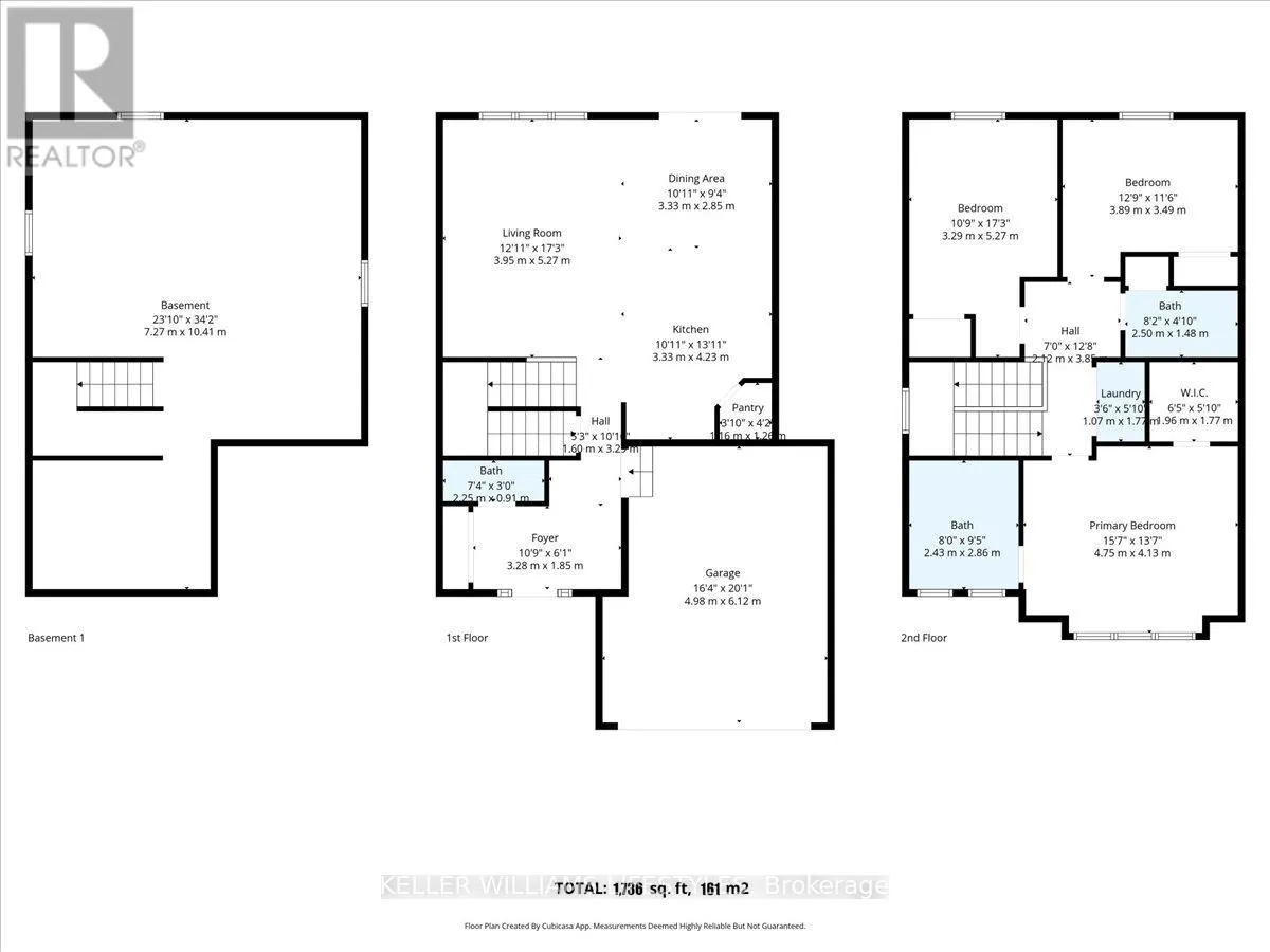
Welcome to this brand new, never-lived-in home by Banman Developments, ideally located in the desirable Copperfield neighbourhood of southwest London. Situated on an oversized corner lot, this thoughtfully designed new construction offers 1,736 sq ft of stylish and functional living space with 3 bedrooms and 2.5 bathrooms. High-quality finishes are showcased throughout, reflecting the craftsmanship and attention to detail Banman

is known for.The main level features an open-concept layout perfect for everyday living and entertaining, while the lookout basement provides excellent natural light and future potential. A poured concrete driveway adds both durability and curb appeal. The home will be completed with a finished deck, offering the perfect place to relax and enjoy the surrounding nature-deer sightings included.Upstairs, the spacious primary suite boasts a walk-in closet and a luxurious oversized ensuite with dual vanity. Two additional bedrooms, a full bath, and convenient second-floor laundry complete the upper level. Ideally located close to shopping, amenities, and quick highway access, this home offers the perfect blend of comfort, quality, and convenience in one of London’s most sought-after communities. Price reflects HST Rebate. (id:62650)

Read More
Basic Details
  • Property Type: Residential
  • Listing Type: For Sale
  • Listing ID: X12994924
  • Price: $710,600
  • Bedrooms: 3
  • Bathrooms: 3
  • Half Bathrooms: 1
  • Square Footage: 1500 - 2000 Sqft
  • Status: Active
  • Property Sub Type: Single Family
  • Office Key: 294970
Features & Appliances
Features
  • Heating System: Forced air, Natural gas
  • Cooling System: Central air conditioning
  • Basement: Full
  • Parking: Garage, Attached Garage
  • Exterior Features: Brick, Vinyl siding
  • Sewer: Sanitary sewer
Address Map
  • Location: CA, Ontario, London South (South W), N6L0E2
  • Street: LISMER
  • Street Number: 4334
  • Street Suffix: Lane
  • Longitude: W82° 44' 27''
  • Latitude: N42° 55' 55''
Additional Information
  • Water Source:
  • Foundation Details:
  • Lot Size Dimensions: 48.6 x 113.2 FT
  • Stories: 2.0
Powered by REALTOR.ca
Listing updated: 2026-05-14 14:12:25
List Your Property
Mortgage Calculator
Get Pre-Approved
$
$
%
%
years
Monthly Payment (Est.) $
Listing Information
  • List Agent Key: 2049472
  • List Office Key: 294970
  • Modification Timestamp: 2026-04-24T05:00:58Z
  • Originating System Name: London and St. Thomas Association of REALTORS®
  • Status Change Timestamp: 2026-04-24T04:52:43Z
Powered by REALTOR.ca
Listing updated: 2026-05-14 14:12:25
REALTOR®, REALTORS®, and the REALTOR® logo are certification marks that are owned by REALTOR® Canada Inc. and licensed exclusively to The Canadian Real Estate Association (CREA). These certification marks identify real estate professionals who are members of CREA and who must abide by CREA’s By‐Laws, Rules, and the REALTOR® Code. The MLS® trademark and the MLS® logo are owned by CREA and identify the quality of services provided by real estate professionals who are members of CREA.

The information contained on this site is based in whole or in part on information that is provided by members of The Canadian Real Estate Association, who are responsible for its accuracy. CREA reproduces and distributes this information as a service for its members and assumes no responsibility for its accuracy.

Website is operated by a brokerage or salesperson who is a member of The Canadian Real Estate Association.

The listing content on this website is protected by copyright and other laws, and is intended solely for the private, non‐commercial use by individuals. Any other reproduction, distribution or use of the content, in whole or in part, is specifically forbidden. The prohibited uses include commercial use, “screen scraping”, “database scraping”, and any other activity intended to collect, store, reorganize or manipulate data on the pages produced by or displayed on this website.

By continuing to use this website and its services, you agree to these

These forms are provided to ComFree’s Unrepresented Sellers as a part of their Mere Posting ComFree Listing Contract.

I acknowledge I can only access these forms as a ComFree customer under contract.

These forms are provided to ComFree’s Unrepresented Sellers as a part of their Mere Posting ComFree Listing Contract and in partnership with Zubic Law.

I acknowledge I can only access these forms as a ComFree customer under contract.

These forms are provided to ComFree’s Unrepresented Sellers as a part of their Mere Posting ComFree Listing Contract and in partnership with Zubic Law.

I acknowledge I can only access these forms as a ComFree customer under contract.

How It Works

1. Purchase Your Package

2. We Ship Your ‘For Sale’ Sign

3. Book Your VR Tour

4. Complete Listing Input Forms

5. We Make Your Listing Live

6. Get Support 7 Days a Week

7. iSOLD!