Share
$579,000
Ontario,Brantford
For Sale Active
375 WELLINGTON Street, Brantford, Ontario N3S4A8
  • 4
  • 2
  • 2,006 Sqft
Basic Details
Description

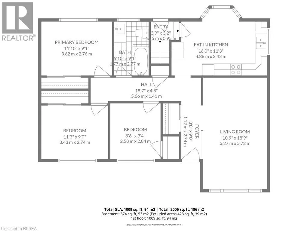
Welcome home to 375 Wellington Street — a beautifully maintained all-brick 3+1 bedroom, 2 bathroom bungalow tucked into a welcoming family neighbourhood. Offering 1,063 sq. ft. of bright, comfortable living space above grade plus a fully finished lower level, this solid-built home sits proudly on a generous 53 x 126 ft. lot with plenty of room to enjoy. From the

moment you pull into the long private driveway and step onto the charming covered front porch, this home invites you to slow down, settle in, and stay awhile. Inside, sun-drenched principal rooms flow effortlessly together, creating the perfect backdrop for everyday living and easy entertaining. The spacious living room features warm wide-plank flooring, oversized windows, and a bright, airy feel that carries through the entire main level. The eat-in kitchen is a true heart-of-the-home space, offering generous wood cabinetry, ample counter space, and a sunny breakfast nook just made for morning coffee and slow Sunday brunches. Three comfortable bedrooms and a tastefully appointed full bath complete the main floor. Downstairs, the fully finished lower level expands your living space with a bright recreation room, a versatile fourth bedroom with a large above-grade window, a second full bathroom, and plenty of storage. A separate rear entrance to the basement adds incredible flexibility — perfect for extended family, an in-law suite setup, a home-based business, or future income potential. Step outside to a deep, fully fenced backyard with room to garden, play, and unwind. Just steps to Devereux Park, schools, shopping, transit, and quick highway access, this move-in-ready bungalow delivers comfort, convenience, and true pride of ownership. Simply unpack and enjoy — welcome home. (id:62650)

Read More
Basic Details
  • Property Type: Residential
  • Listing Type: For Sale
  • Listing ID: 40820829
  • Price: $579,000
  • Bedrooms: 4
  • Bathrooms: 2
  • Square Footage: 2,006 Sqft
  • Status: Active
  • Property Sub Type: Single Family
  • Office Key: 92520
Features & Appliances
Features
  • Heating System: Forced air, Natural gas
  • Cooling System: Central air conditioning
  • Basement: Finished, Full
  • Parking: None
  • Architectural Style: Bungalow
  • Exterior Features: Brick
  • Sewer: Municipal sewage system
Address Map
  • Location: CA, Ontario, Brantford, 2050 - Echo Place, N3S4A8
  • Street: WELLINGTON
  • Street Number: 375
  • Street Suffix: Street
  • Longitude: W81° 45' 27.8''
  • Latitude: N43° 8' 32.8''
Additional Information
  • Water Source:
  • Foundation Details:
  • Lot Features:
  • Stories: 1.0
Financial
  • Tax Annual Amount: 3272.64
Powered by REALTOR.ca
Listing updated: 2026-04-27 23:38:57
List Your Property
Mortgage Calculator
Get Pre-Approved
$
$
%
%
years
Monthly Payment (Est.) $
Listing Information
  • List Agent Key: 2019545
  • List Office Key: 92520
  • Modification Timestamp: 2026-04-27T16:20:58Z
  • Originating System Name: Brantford Regional Real Estate Assn Inc
  • Status Change Timestamp: 2026-04-27T16:14:18Z
Powered by REALTOR.ca
Listing updated: 2026-04-27 23:38:58
REALTOR®, REALTORS®, and the REALTOR® logo are certification marks that are owned by REALTOR® Canada Inc. and licensed exclusively to The Canadian Real Estate Association (CREA). These certification marks identify real estate professionals who are members of CREA and who must abide by CREA’s By‐Laws, Rules, and the REALTOR® Code. The MLS® trademark and the MLS® logo are owned by CREA and identify the quality of services provided by real estate professionals who are members of CREA.

The information contained on this site is based in whole or in part on information that is provided by members of The Canadian Real Estate Association, who are responsible for its accuracy. CREA reproduces and distributes this information as a service for its members and assumes no responsibility for its accuracy.

Website is operated by a brokerage or salesperson who is a member of The Canadian Real Estate Association.

The listing content on this website is protected by copyright and other laws, and is intended solely for the private, non‐commercial use by individuals. Any other reproduction, distribution or use of the content, in whole or in part, is specifically forbidden. The prohibited uses include commercial use, “screen scraping”, “database scraping”, and any other activity intended to collect, store, reorganize or manipulate data on the pages produced by or displayed on this website.

By continuing to use this website and its services, you agree to these

These forms are provided to ComFree’s Unrepresented Sellers as a part of their Mere Posting ComFree Listing Contract.

I acknowledge I can only access these forms as a ComFree customer under contract.

These forms are provided to ComFree’s Unrepresented Sellers as a part of their Mere Posting ComFree Listing Contract and in partnership with Zubic Law.

I acknowledge I can only access these forms as a ComFree customer under contract.

These forms are provided to ComFree’s Unrepresented Sellers as a part of their Mere Posting ComFree Listing Contract and in partnership with Zubic Law.

I acknowledge I can only access these forms as a ComFree customer under contract.

How It Works

1. Purchase Your Package

2. We Ship Your ‘For Sale’ Sign

3. Book Your VR Tour

4. Complete Listing Input Forms

5. We Make Your Listing Live

6. Get Support 7 Days a Week

7. iSOLD!