Share
$519,900
Alberta,Legal
For Sale Active
5121 53A AV, Legal, Alberta T0G1L0
  • 3
  • 3
  • 1,764 Sqft
Basic Details
Description

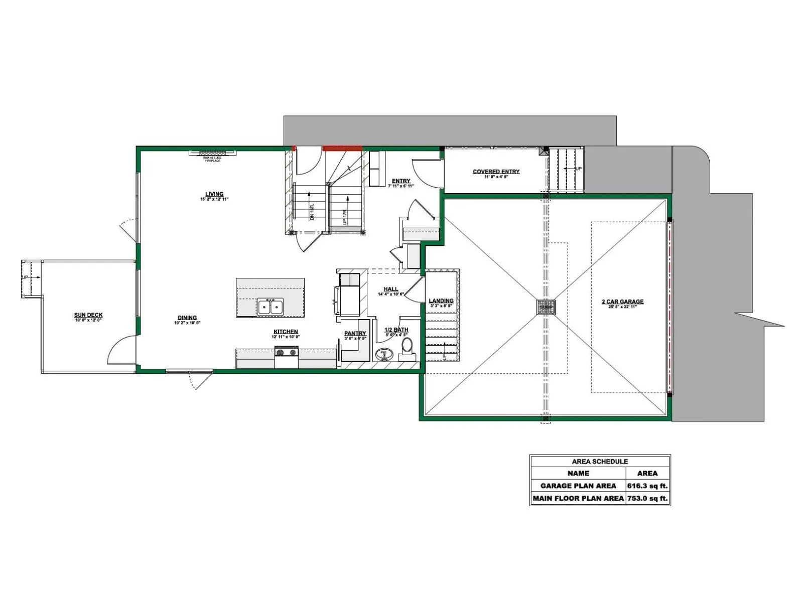
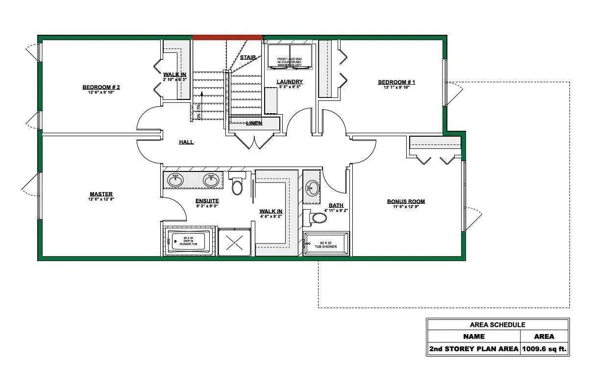
Welcome to this stunning new 2-storey home in Pepin’s Point, Legal, approved for the Town of Legal’s tax incentive program! Nestled on a large lot near parks and trails with alley access, this home offers privacy and nature. The bright, open-concept main floor features a modern kitchen with quartz counters, island, walk-in pantry, and premium appliances. The living room centers

around a sleek tile fireplace, while a half bath off the garage adds convenience. Upstairs includes 3 spacious bedrooms, a 4-piece bath, large laundry with washer and dryer, plus a bonus room. The primary suite boasts a 5-piece ensuite and walk-in closet. The basement has a separate side entry and is roughed in for a future suite. Oversized garage includes high ceilings, floor drain, and heat rough-ins. Enjoy the rear deck with natural gas BBQ hookup. Built by Westbrook Developments, this home blends quality, comfort, and family living. (id:64429)

Read More
Basic Details
  • Property Type: Residential
  • Listing Type: For Sale
  • Listing ID: E4461692
  • Price: $519,900
  • Bedrooms: 3
  • Bathrooms: 3
  • Half Bathrooms: 1
  • Square Footage: 1,764 Sqft
  • Year Built: 2025
  • Status: Active
  • Office Name: RE/MAX Real Estate
  • Property Sub Type: Single Family
  • Office Key: 67036
Features & Appliances
Features
  • Heating System: Forced air
  • Basement: Full, Unfinished
  • Fireplace: Electric, Unknown
  • Parking: Attached Garage, Oversize
  • Fireplaces Total: 1
Address Map
  • Location: CA, Alberta, Legal, T0G1L0
  • Longitude: W114° 24' 2.8''
  • Latitude: N53° 57' 10.9''
Additional Information
  • Lot Features:
  • Stories: 2.0
Powered by REALTOR.ca
Listing updated: 2026-02-28 02:28:48
List Your Property
Mortgage Calculator
Get Pre-Approved
$
$
%
%
years
Monthly Payment (Est.) $
Similar Properties
Listing Information
  • List Agent Key: 1977374
  • List Office Key: 67036
  • Modification Timestamp: 2026-02-25T16:15:26Z
  • Originating System Name: REALTORS® Association of Edmonton
  • Status Change Timestamp: 2026-02-25T16:05:02Z
Powered by REALTOR.ca
Listing updated: 2026-02-28 02:28:48
REALTOR®, REALTORS®, and the REALTOR® logo are certification marks that are owned by REALTOR® Canada Inc. and licensed exclusively to The Canadian Real Estate Association (CREA). These certification marks identify real estate professionals who are members of CREA and who must abide by CREA’s By‐Laws, Rules, and the REALTOR® Code. The MLS® trademark and the MLS® logo are owned by CREA and identify the quality of services provided by real estate professionals who are members of CREA.

The information contained on this site is based in whole or in part on information that is provided by members of The Canadian Real Estate Association, who are responsible for its accuracy. CREA reproduces and distributes this information as a service for its members and assumes no responsibility for its accuracy.

Website is operated by a brokerage or salesperson who is a member of The Canadian Real Estate Association.

The listing content on this website is protected by copyright and other laws, and is intended solely for the private, non‐commercial use by individuals. Any other reproduction, distribution or use of the content, in whole or in part, is specifically forbidden. The prohibited uses include commercial use, “screen scraping”, “database scraping”, and any other activity intended to collect, store, reorganize or manipulate data on the pages produced by or displayed on this website.

By continuing to use this website and its services, you agree to these

These forms are provided to ComFree’s Unrepresented Sellers as a part of their Mere Posting ComFree Listing Contract.

I acknowledge I can only access these forms as a ComFree customer under contract.

These forms are provided to ComFree’s Unrepresented Sellers as a part of their Mere Posting ComFree Listing Contract and in partnership with Zubic Law.

I acknowledge I can only access these forms as a ComFree customer under contract.

These forms are provided to ComFree’s Unrepresented Sellers as a part of their Mere Posting ComFree Listing Contract and in partnership with Zubic Law.

I acknowledge I can only access these forms as a ComFree customer under contract.

How It Works

1. Purchase Your Package

2. We Ship Your ‘For Sale’ Sign

3. Book Your VR Tour

4. Complete Listing Input Forms

5. We Make Your Listing Live

6. Get Support 7 Days a Week

7. iSOLD!